[ 現地周辺 ]
[ 現地周辺 ]
[ 現地周辺 ]
拡大


JAZZG BASE
[事業用] 店舗・事務所
住所  北海道札幌市白石区栄通4丁目2-11
沿線  地下東西線「南郷7丁目」徒歩12分  
 地下東西線「白石」徒歩13分  
部屋 間取
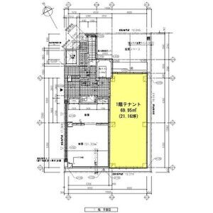
101 (1階部分) テナント (69.95m2)
賃料 管理費・共益費
220,000円 33,000円
敷金/礼金 保証金/償却・敷引
600,000円/なし なし/なし
契約期間
定期借家 10年間
 構造 鉄筋コンクリート造 5戸 地上5階  状態 新築 建築中
 築年月 2026年03月  入居可能時期 相談
 方位 -----  情報更新日 2026-03-18 04:40:25
 その他
 駐車場 敷地内駐車場/空きあり/7,700円~14,300円
駐車場空き番号: ピロティ14,300円・青空11,000円・軽専用7,700円 計6台分あり ※位置は当社指定
諸経費
保険
町内会費 実費
設備・条件
セキュリティ ○ 宅配BOX
その他 ○ エレベーター ○ ガス(都市ガス)
物件ポイント
●2026年3月竣工予定のテナントビル
●10年の定期借家 ※再契約相談可
●スケルトン渡し。1階共用部にトイレあり。
●駐車場有 ※契約者で使用、来客用どちらでも可
●保証会社利用必須
●整骨院・事務所・福祉・医療・店舗ビジネスなどにおすすめです!
●3Fメンタルクリニック
周辺環境
販売店 「キテネ食品館 月寒店」 (400m)
コンビニエンスストア 「ローソン アサヒビール園前店」 (320m)
その他 「サンドラッグ 南郷4丁目店」 (560m)
札幌オーナーズ株式会社
北海道札幌市白石区東札幌二条5丁目7-5 エコビル白石1F
Tel:011-811-0072  / 
Fax:011-833-9099
北海道知事石狩免許(7)第5983号
  • 賃貸住宅管理番号:
  •  国土交通大臣 (2 )第3670号
  • 所属団体:
  •  (公社)北海道宅地建物取引業協会
  • 不動産公正取引協議会:
  •  (一社)北海道不動産公正取引協議会加盟
取引態様:仲介
お気に入り追加 お問合せ
とじる
prev next
/
[ 現地周辺 ]
[ 現地周辺 ]
[ 現地周辺 ]
とじる