

|
CONCEPT BASE宮の森 [住居用] 店舗付住宅 |
|||||
|
|||||
| 部屋 | 間取 | ||||
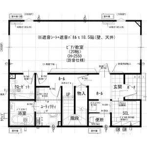
| A棟 | [ 戸建 ] 3LDK (132.5m2) | ||||
| 賃料 | 管理費・共益費 | ||||
| 300,000円 | なし | ||||
| 敷金/礼金 | 保証金/償却・敷引 | ||||
|
1ヶ月/1ヶ月 ペット飼育時礼金1ヶ月 |
なし/なし | ||||
| 契約期間 | |||||
| 普通借家 2年間 | |||||
| ● 構造 | 木造 3戸 地上2階 | ● 状態 | 新築 建築中 |
| ● 築年月 | 2026年02月 | ● 入居可能時期 | 2026年3月中旬 |
| ● 方位 | 東南向き | ● 情報更新日 | 2025-12-05 09:03:48 |
| ● その他 | ・法人契約可 | ||
| ● 駐車場 |
敷地内駐車場/空き2台/11,000円 RH融雪負担金(12月~3月)月3,300円税込あり |
||
| 諸経費 | ||
| 保証会社 |
保証会社利用必須 ジェイリース 初年度賃料合計の50%、月額1,000円(更新料・振込手数料込み) |
|
| 保険 | 保険要加入 | |
| ハウスクリーニング料 | 99,000円 [契約時] | |
| エアコンクリーニング料 | 55,000円 [契約時] 5台分 | |
| 町内会費 | 250円 [月額] | |
| 条件 | ○ ペット相談(大型犬可能) ○ 外国人契約可能 ○ 楽器相談 ○ 事務所利用可能 ○ 2人入居可能 ○ 子供可 ○ 保証会社利用必須 |
| キッチン | ○ 給湯器(都市ガス) ○ ガスコンロ(3口以上) ○ システムキッチン ○ アイランドキッチン ○ 食器洗浄乾燥機(ビルドイン型) |
| 水廻り | ○ 風呂(ユニットバス) ○ シャワートイレ ○ 追い焚き ○ 洗髪洗面化粧台 ○ バス・トイレ別 ○ 洗濯機置場(室内) ○ トイレ2カ所 |
| 冷暖房 | ○ エアコン(冷房のみ) ○ 暖房(都市ガス) ○ 床暖房 |
| 収納 | ○ ウォークインクローゼット ○ シューズボックス |
| 放送・通信 | ○ BS ○ CS ○ 光ファイバー ○ UHFアンテナ(地デジ用) ○ インターネット対応 |
| セキュリティ | ○ 管理人(巡回) ○ 防犯カメラ ○ インターホン(カメラ付き) |
| その他 | ○ ロードヒーティング ○ ガス(都市ガス) ○ 水道(公営) ○ 照明 ○ 網戸 ○ メゾネットタイプ ○ デザイナーズ ○ 複層ガラス・ペアガラス ○ 24時間換気システム ○ 間接照明 ○ フローリング ○ 室内物干 |
| 株式会社 旭堂 |
| 北海道札幌市中央区大通西17丁目1番地14 旭堂第2ビル4階 |
|
Tel:011-614-2103 / Fax:011-616-4455 |
| 北海道知事石狩免許(3)第8264号 |
|
|
| 取引態様:貸主 |
|
|
コンセプト賃貸住宅です。1階には、20帖の大型防音室。趣味の楽器演奏も良し、音楽教室など店舗兼住宅として利用も可能。広さを活かして事務所利用などライフスタイルに合わせたワンランク上の暮らしを是非ともご体感ください。