[ 建物外観 ]
[ その他 ]
[ その他 ]
拡大


レオパレス悠樹Ⅰ
[住居用] アパート
住所  岩手県一関市字宇南
沿線  東北線「一ノ関」徒歩9分  
部屋 間取
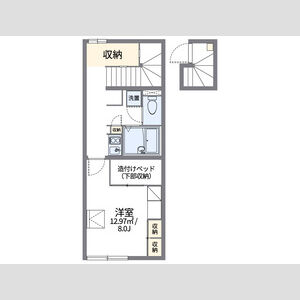
209 (2階部分) 1K (28.02m2)
賃料 管理費・共益費
62,000円 4,500円
敷金/礼金 保証金/償却・敷引
なし/なし なし/なし
契約期間
 構造 木造 20戸 地上2階  状態 空室
 築年月 2007年10月  入居可能時期 即入
 方位 -----  情報更新日 2026-04-19 05:39:41
 その他
 駐車場 敷地内駐車場/空き1台/7,150円
諸経費
保険 保険要加入 住宅保険
鍵交換費用 16,500 円
室内清掃費用 41,800 円
設備・条件
条件 ○ フリーレント
キッチン ○ 給湯器 ○ 電気コンロ
水廻り ○ 浴室乾燥機 ○ シャワートイレ ○ バス・トイレ別 ○ 洗濯機置場(室内)
冷暖房 ○ エアコン(冷暖房)
放送・通信 ○ インターネット対応
セキュリティ ○ 防犯カメラ ○ インターホン(カメラ付き)
その他 ○ 家具付 ○ 家電付
物件ポイント
環境維持費:1ヶ月550円(税込)、鍵交換費:ご契約時16500円(税込)、退去時清掃費:41800円(税込)、インターネット利用料:有料、更新手数料:16500円(税込)、保証委託料:必要、引落手数料:524円(税込)
インターネット使い放題・U-NEXT一般作品見放題プラン有
フリーレント:1ヶ月
アジュール不動産(株)
岩手県北上市有田町8-18
Tel:050-1807-0987  / 
Fax:050-1792-0619
岩手県知事免許(2)第2578号
  • 所属団体:
  •  (一社)岩手県宅地建物取引業協会
  • 不動産公正取引協議会:
  •  不動産公正取引協議会加盟
取引態様:仲介
お気に入り追加 お問合せ
とじる
prev next
/
[ 建物外観 ]
[ その他 ]
[ その他 ]
とじる