[ 建物外観 ]
拡大


F-works南郷
[住居用] マンション
住所  北海道札幌市白石区南郷通16丁目北10-21
沿線  地下東西線「南郷18丁目」徒歩5分  
 地下東西線「南郷13丁目」徒歩9分  
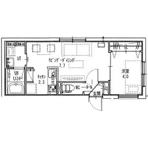
部屋 間取
303(3階部分) 1LDK (33.03m2)
賃料 管理費・共益費
59,000円 4,000円
敷金/礼金 保証金/償却・敷引
1ヶ月/1ヶ月 なし/なし
契約期間
普通借家 2年間
 構造 鉄筋コンクリート造 11戸 地上4階  状態 新築 建築中
 築年月 2026年01月  入居可能時期 2026年2月01日
 方位 北東向き  情報更新日 2025-10-10 15:01:59
 その他 ・法人契約可
 駐車場 なし
諸経費
保証会社 保証会社利用必須
オリコ:初回保証料月額賃料30%(最低保証料15,000円)+月額1%
全保連:初回保証料月額賃料120%更新無し(最低保証料40,000円)
        or30%+更新料年13,000円(最低保証料20,000円)
日本セーフティー:初回保証料50%+更新料年1万
CASA:初回保証料月額賃料30%+更新料年1万
保険 保険要加入 2年契約 20,000円
退去時清掃料 27,500円 [契約時または退去時]
シリンダー交換料 11,000円 [契約時または退去時]
エアコン清掃料 16,500円 [契約時または退去時]
ペット消臭料 22,000円 [退去時]
緊急サポート費 550円 [月額]
設備・条件
位置 ○ 角部屋
条件 ○ ペット相談(小型犬、猫可) ○ 保証会社利用必須
キッチン ○ 給湯器(都市ガス) ○ システムキッチン
水廻り ○ 風呂 ○ トイレ(水洗) ○ 洗面台 ○ シャワートイレ ○ 洗髪洗面化粧台 ○ バス・トイレ別 ○ 洗濯機置場
冷暖房 ○ エアコン ○ 暖房(都市ガス)
収納 ○ シューズボックス
放送・通信 ○ BS ○ UHFアンテナ(地デジ用) ○ ネット使用料不要
セキュリティ ○ オートロック ○ 宅配BOX ○ 防犯カメラ ○ インターホン(カメラ付き)
その他 ○ 専用ごみ置場 ○ 自転車置場 ○ 電気 ○ ガス(都市ガス) ○ 水道(公営) ○ 排水(公共下水) ○ 網戸 ○ デザイナーズ ○ フロアタイル ○ 日当たり良好
物件ポイント
ペット飼育可(小型犬・猫どちらか1匹迄/退去時ペット消臭料22,000円税込要)
オール都市ガス物件(北海道ガスと給湯器リース契約あり)・インターネットマンションタイプ無料(供給元:㈱つなぐネットコミュニケーションズ)・全室エアコン完備・録画機能付TVモニターホン完備・屋外駐輪場
株式会社北海レジデンス
北海道札幌市北区北十八条西3丁目1-18 リー北18条ビル4階
Tel:011-700-9977 / 
Fax:011-700-9978
北海道知事石狩免許(3)第8057号
  • 賃貸住宅管理番号:
  •  国土交通大臣(1)第6720号
  • 所属団体:
  •  (公社)全日本不動産協会
  • 不動産公正取引協議会:
  •  (一社)北海道不動産公正取引協議会加盟
取引態様:貸主代理
お気に入り追加 お問合せ
とじる
prev next
/
[ 建物外観 ]
とじる