[ 建物外観 ]
[ 駐車場 ]
[ 敷地内/建物 ]
[ 駐車場 ]
[ その他 ]
[ その他 ]
[ その他 ]
[ 玄関 ]
[ 居室・リビング ]
[ キッチン ]
[ 洗面所 ]
[ バス ]
[ トイレ ]
拡大


メゾンドール平岡
[住居用] アパート
住所  北海道札幌市清田区平岡三条4丁目7-8
沿線  地下東西線「大谷地」徒歩52分  
部屋 間取
201 (3階部分) 1LDK (28.05m2)
賃料 管理費・共益費
34,000円 2,000円
敷金/礼金 保証金/償却・敷引
0円/0円 なし/なし
契約期間
普通借家 2年間
 構造 木造 8戸 地上3階  状態 空室
 築年月 1991年10月  入居可能時期 相談
 方位 -----  情報更新日 2026-03-19 20:42:00
 その他
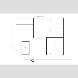
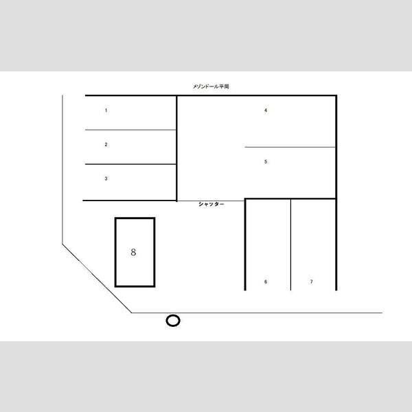
 駐車場 敷地内駐車場/空き1台/4,400円
屋外8 ※契約開始前の除排雪は実施致しません。
諸経費
保証会社 保証会社利用必須 あんしん保証株式会社
初回:月額合計の 50%~ 年更新:1万円〜 月額:880円
保険 保険要加入 2年契約 23,500円 ~
ハウスクリーニング 33,000 円 [契約時] 税込、退去時可
暖房分解清掃料 22,000 円 [契約時] 税込、退去時可
町内会費 [月額]
カードキー設定料 14,300 円 [契約時]
リペアサービス 1,650 円 [月額]
入居前 盗聴・盗撮調査サービス 9,900 円 [契約時]
設備・条件
位置 ○ 最上階
条件 ○ 2人入居可能 ○ 保証会社利用必須
キッチン ○ 給湯器(プロパンガス)
水廻り ○ 風呂 ○ トイレ(水洗) ○ 暖房便座 ○ シャワートイレ ○ バス・トイレ別 ○ 洗濯機置場(室内)
冷暖房 ○ 暖房(灯油)
収納 ○ シューズボックス
セキュリティ ○ インターホン(カメラ付き)
その他 ○ ガス(プロパンガス) ○ 水道(公営) ○ 排水(公共下水)
物件ポイント
学生:可/単身者:可
現状:退去済み、内装中
株式会社UpHousing
北海道札幌市中央区南六条西7丁目5-2 第82松井ビル1F
Tel:011-522-9233  / 
Fax:011-522-7898
北海道知事石狩免許(1)第8397号
取引態様:仲介
お気に入り追加 お問合せ
とじる
prev next
/
[ 建物外観 ]
[ 駐車場 ]
[ 敷地内/建物 ]
[ 駐車場 ]
[ その他 ]
[ その他 ]
[ その他 ]
[ 玄関 ]
[ 居室・リビング ]
[ キッチン ]
[ 洗面所 ]
[ バス ]
[ トイレ ]
とじる