[ 建物外観 ]
[ 敷地内/建物 ]
[ その他 ]
1階図面
[ ]
2階図面
[ ]
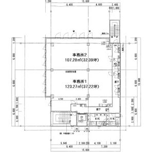
3階~5階図面
[ ]
別地駐車場 図面
[ ]
建物・別地駐車場 配置図面
[ その他 ]
家賃表
拡大


仮称 刈谷一色ビル
[事業用] 店舗・事務所
住所  愛知県刈谷市一色町3丁目8-19
沿線  三河線「重原」徒歩13分  
 東海道線「刈谷」徒歩15分  
部屋 間取
3-1(3階部分) テナント (123.27m2)
賃料 管理費・共益費
450,362円 122,826円
敷金/礼金 保証金/償却・敷引
-----/----- 3ヶ月/-----
契約期間
普通借家
 構造 鉄骨造 地上5階  状態 新築 建築中
 築年月 2026年01月  入居可能時期 2026年2月01日
 方位 -----  情報更新日 2025-10-11 10:01:08
 その他
 駐車場 敷地内駐車場/敷地外専用駐車場(60m)/空き50台/6,050円~7,150円
諸経費
保証会社 保証会社利用必須 ジェイリース
保険 保険要加入
設備・条件
条件 ○ 事務所利用可能 ○ 保証会社利用可能 ○ 保証会社利用必須
水廻り ○ トイレ(水洗) ○ シャワートイレ ○ トイレ2カ所 ○ 男女別トイレ
放送・通信 ○ 光ファイバー(光配線方式) ○ インターネット対応
セキュリティ ○ オートロック ○ オートロック ハンズフリー ○ 防犯カメラ ○ インターホン
テナント設備 ○ 24時間利用 ○ OAフロア ○ ワンフロア
その他 ○ 専用ごみ置場 ○ エレベーター(1基) ○ 自転車置場 ○ 電気 ○ ガス(都市ガス) ○ 水道(公営) ○ 排水(公共下水) ○ 日当たり良好
物件ポイント
株式会社サポート・ユア・ライフ
愛知県豊明市二村台4丁目1-1
Tel:0562-85-9920 / 
Fax:0562-85-9921
愛知県知事免許(3)第22497号
  • 賃貸住宅管理番号:
  •  国土交通大臣(2)第8978号
お気に入り追加 お問合せ
とじる
prev next
/
[ 建物外観 ]
[ 敷地内/建物 ]
[ その他 ]
1階図面
[ ]
2階図面
[ ]
3階~5階図面
[ ]
別地駐車場 図面
[ ]
建物・別地駐車場 配置図面
[ その他 ]
家賃表
とじる