|
KARIYA ISSHIKI BILD [事業用] 店舗・事務所 |
|||||
|
|||||
| 部屋 | 間取 | ||||
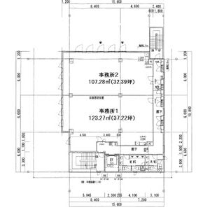
| 3階 (3階部分) | テナント (230.55m2) | ||||
| 賃料 | 管理費・共益費 | ||||
| 759,000円 | 165,000円 | ||||
| 敷金/礼金 | 保証金/償却・敷引 | ||||
| -----/----- | 3ヶ月/----- | ||||
| 契約期間 | |||||
| 普通借家 | |||||
| ● 構造 | 鉄骨造 地上5階 | ● 状態 | 空室 新築 |
| ● 築年月 | 2026年01月 | ● 入居可能時期 | 2026年2月19日 |
| ● 方位 | ----- | ● 情報更新日 | 2026-01-30 09:54:55 |
| ● その他 | |||
| ● 駐車場 |
敷地内駐車場/敷地外専用駐車場(60m)/空き50台/6,050円~7,150円 |
||
| 諸経費 | ||
| 保証会社 | 保証会社利用必須 ジェイリース | |
| 保険 | 保険要加入 | |
| 位置 | ○ 角部屋 |
| 条件 | ○ 事務所利用可能 ○ 保証会社利用可能 ○ 保証会社利用必須 |
| 水廻り | ○ トイレ(水洗) ○ シャワートイレ ○ トイレ2カ所 ○ 男女別トイレ |
| 放送・通信 | ○ 光ファイバー(光配線方式) ○ インターネット対応 |
| セキュリティ | ○ オートロック ○ オートロック ハンズフリー ○ 防犯カメラ ○ インターホン |
| テナント設備 | ○ 24時間利用 ○ OAフロア ○ ワンフロア |
| その他 | ○ 専用ごみ置場 ○ エレベーター(1基) ○ 自転車置場 ○ 電気 ○ ガス(都市ガス) ○ 水道(公営) ○ 排水(公共下水) ○ 日当たり良好 |
| 株式会社サポート・ユア・ライフ |
| 愛知県豊明市二村台4丁目1-1 |
|
Tel:0562-85-9920 / Fax:0562-85-9921 |
| 愛知県知事免許(3)第22497号 |
|
|
|