

|
宇治園ビル [事業用] 事務所 |
|||||
|
|||||
| 部屋 | 間取 | ||||
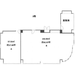
| 3F B(3階部分) | テナント (142.06m2) | ||||
| 賃料 | 管理費・共益費 | ||||
| 473,000円 | 70,901円 | ||||
| 敷金/礼金 | 保証金/償却・敷引 | ||||
| 860,000円/549,242円 | なし/なし | ||||
| 契約期間 | |||||
| 3年間 | |||||
| ● 構造 | 鉄筋コンクリート造 地上4階 | ● 状態 | 空室 |
| ● 築年月 | 1997年08月 | ● 入居可能時期 | 相談 |
| ● 方位 | ----- | ● 情報更新日 | 2025-12-20 04:44:53 |
| ● その他 | |||
| ● 駐車場 |
空き1台/12,100円 |
||
| 諸経費 | ||
| 保証会社 |
保証会社利用可能 全保連株式会社 初回100%(最低保証 4万)・口座振替手数料550円 更新料10% |
|
| 保険 | 保険要加入 2年契約 22,500円 | |
| 条件 | ○ 事務所利用可能 ○ 保証会社利用可能 |
| 冷暖房 | ○ エアコン |
| その他 | ○ エレベーター |
| 株式会社土屋ホーム不動産 |
| 北海道札幌市北区北九条西3丁目10-1小田ビル6階 |
|
Tel:0570-046-228 / Fax:011-727-4775 |
| 国土交通大臣免許(4)第7766号 |
|
| 取引態様:一般媒介 |
|
|
OAフロア 冷暖房費定額880円/坪 電気料は貸主より検針のうえ毎月別途請求 正面玄関8時〜19時まで解放 警備セキュリティ有り 駐車場2〜3台空きあり 物件閲覧希望の方は弊社までご連絡ください。