[ 建物外観 ]
[ 地図 ]
拡大


GRANPASEO丸の内
[住居用] マンション
住所  愛知県名古屋市中区丸の内2丁目6-11
沿線  鶴舞線「丸の内」徒歩6分  
 名城線「久屋大通」徒歩9分  
部屋 間取
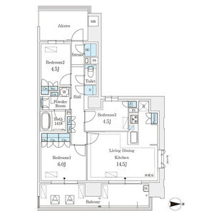
704(7階部分) 3LDK (69.4m2)
賃料 管理費・共益費
234,000円 15,000円
敷金/礼金 保証金/償却・敷引
なし/なし なし/なし
契約期間
 構造 鉄筋コンクリート造 地上15階  状態 空室
 築年月 2024年01月  入居可能時期 即入
 方位 東向き  情報更新日 2026-01-17 07:33:17
 その他
 駐車場 なし
諸経費
保険 保険要加入
室内清掃費 91,608円
鍵交換費 25,300円
口座振替事務手数料 110円 [月額]
設備・条件
条件 ○ フリーレント ○ 保証会社利用可能
キッチン ○ システムキッチン
水廻り ○ 風呂 ○ 洗面台(独立) ○ 浴室乾燥機 ○ 追い焚き ○ バス・トイレ別 ○ 洗濯機置場(室内)
冷暖房 ○ エアコン ○ 床暖房
セキュリティ ○ オートロック ○ 宅配BOX ○ 管理人(巡回)
その他 ○ 専用ごみ置場 ○ エレベーター ○ オートバイ駐輪場 ○ 電気 ○ バルコニー/ベランダ ○ フローリング
物件ポイント
フリーレント2ヶ月。■更新事務手数料:22,000円/2年毎■電子契約不可■指定保証会社加入必須※法人相談可■1年未満・2年未満解約時違約金有
バルコニ・グリル・食洗機・食器乾燥機
フリーレント2ヶ月。■更新事務手数料:22,000円/2年毎■電子契約不可■指定保証会社加入必須※法、【保証人代行】初回保証委託料(最低20,000円):月額賃料等の50%、 2年目以降:10,000円/年、フリーレント 2ヶ月
住マイル株式会社 ホームメイトFC浄心駅前店
愛知県名古屋市西区浄心1丁目1-48 浄心ステーションビル南館1F
Tel:052-938-7601 / 
Fax:052-938-7602
愛知県知事免許(1)第24077号
  • 所属団体:
  •  (公社)全日本不動産協会
  • 不動産公正取引協議会:
  •  東海不動産公正取引協議会加盟
取引態様:仲介
お気に入り追加 お問合せ
とじる
prev next
/
[ 建物外観 ]
[ 地図 ]
とじる