

|
S-RESIDENCE烏森aureate(オリート) [住居用] マンション |
|||||
|
|||||
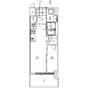
| 部屋 | 間取 | ||||
| 303(3階部分) | 1LDK (29.3m2) | ||||
| 賃料 | 管理費・共益費 | ||||
| 70,000円 | 8,000円 | ||||
| 敷金/礼金 | 保証金/償却・敷引 | ||||
|
なし/なし ※法人契約の場合1ヶ月分 |
なし/なし | ||||
| 契約期間 | |||||
| 普通借家 2年間 | |||||
| ● 構造 | 鉄筋コンクリート造 62戸 地上12階 | ● 状態 | 空室 新築 |
| ● 築年月 | 2025年11月 | ● 入居可能時期 | 即入 |
| ● 方位 | 東向き | ● 情報更新日 | 2025-12-11 18:18:17 |
| ● その他 | |||
| ● 駐車場 | |||
| 諸経費 | ||
| 保証会社 |
保証会社利用必須 K-net(近畿保証サービス) 初回保証料:総賃料の50% 1年更新:12,000円 法人契約(上場企業及びそれに準ずる企業)で、保証会社未加入の場合、敷金として賃料の1ヶ月分要 |
|
| 保険 | 保険要加入 アクア少額短期保険 2年契約(2K・1LDK:22,000円) | |
| 室内清掃費用 | [解約時] 2K・1LDK:44,000円(税込) | |
| カギ交換費用 | 33,000円 [解約時] | |
| エアコンクリーニング費用 | 16,500円 [解約時] 1台当たり | |
| 口座振替手数料 | 330円 [月額] | |
| 駐輪場利用料 | 希望者のみ | |
| 条件 | ○ 保証会社利用必須 |
| キッチン | ○ 給湯器(都市ガス) ○ ガスコンロ(2口) |
| 水廻り | ○ 風呂 ○ 洗面台 ○ 浴室乾燥機 ○ 暖房便座 ○ シャワートイレ |
| 冷暖房 | ○ エアコン |
| 収納 | ○ シューズボックス |
| 放送・通信 | ○ インターネット対応(回線工事不要・契約不要) ○ ネット使用料不要 ○ Wi-Fi |
| セキュリティ | ○ オートロック ○ 宅配BOX ○ 防犯カメラ ○ インターホン(カメラ付き) |
| その他 | ○ 専用ごみ置場 ○ エレベーター ○ 自転車置場 |
| 周辺環境 | |
| コンビニエンスストア 「セブン-イレブン 名古屋牛田通店」 (10m) | |
| ホームセンター 「DCM 名古屋黄金店」 (950m) | |
| 飲食店 「国産牛焼肉あみやき亭畑江通店」 (180m) | |
| 販売店 「ケーズデンキ 岩塚店」 (850m) | |
| 販売店 「メガネ赤札堂 黄金橋店」 (80m) | |
| 住マイル株式会社 ホームメイトFC浄心駅前店 |
| 愛知県名古屋市西区浄心1丁目1-48 浄心ステーションビル南館1F |
|
Tel:052-938-7601 / Fax:052-938-7602 |
| 愛知県知事免許(1)第24077号 |
|
| 取引態様:仲介 |
|
|
駐輪場 月額 0円 ※希望者のみ
■■【10月24日、25日(10:00~16:00) 内覧会】■■