

|
S-RESIDENCE四日市市堀木amante(アマンテ) [住居用] マンション |
|||||
|
|||||
| 部屋 | 間取 | ||||
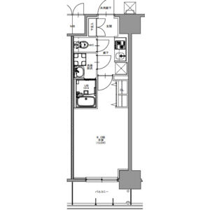
| 203(2階部分) | 1K (24.95m2) | ||||
| 賃料 | 管理費・共益費 | ||||
| 61,500円 | 8,000円 | ||||
| 敷金/礼金 | 保証金/償却・敷引 | ||||
|
なし/なし 法人契約時1ヶ月 |
なし/なし | ||||
| 契約期間 | |||||
| 普通借家 2年間 | |||||
| ● 構造 | 鉄筋コンクリート造 91戸 地上14階 | ● 状態 | 空室 商談中 新築 |
| ● 築年月 | 2025年12月 | ● 入居可能時期 | 即入 |
| ● 方位 | 東南向き | ● 情報更新日 | 2025-12-11 18:20:33 |
| ● その他 | |||
| ● 駐車場 |
敷地内駐車場 |
||
| 諸経費 | ||
| 保証会社 |
保証会社利用必須 K-net(近畿保証サービス) 初回保証委託料総賃料の50%・更新保証委託料¥12,000円/年 個人契約の場合は加入必須。大手法人様契約の場合は敷金として家賃1ヶ月分で対応可。 |
|
| 保険 | 保険要加入 アクア短期少額保険 2年契約 18,000円 | |
| 室内清掃費用 | 33,000円 [解約時] | |
| カギ交換費用 | 33,000円 [解約時] | |
| エアコンクリーニング費用 | 16,500円 [解約時] | |
| 口座振替手数料 | 330円 [月額] | |
| 駐輪場利用料 | [月額] | |
| 条件 | ○ 保証会社利用必須 |
| キッチン | ○ 給湯器(ガス) ○ ガスコンロ(2口) |
| 水廻り | ○ 風呂 ○ トイレ ○ 洗面台 ○ 浴室乾燥機 ○ 暖房便座 ○ 洗濯機置場(室内) |
| 冷暖房 | ○ エアコン |
| 放送・通信 | ○ BS ○ CS ○ ネット使用料不要 |
| セキュリティ | ○ オートロック ○ 宅配BOX ○ 防犯カメラ ○ インターホン(カメラ付き) |
| その他 | ○ 専用ごみ置場 ○ エレベーター(1基) ○ 自転車置場 ○ バルコニー/ベランダ ○ フローリング |
| 周辺環境 | |
| コンビニエンスストア 「ローソン」 (0m) | |
| ドラッグストア 「スギドラッグ 久保田店」 (0m) | |
| ホームセンター 「DCM四日市店」 (0m) | |
| ショッピングセンター 「アピタ四日市店」 (0m) | |
| 住マイル株式会社 ホームメイトFC浄心駅前店 |
| 愛知県名古屋市西区浄心1丁目1-48 浄心ステーションビル南館1F |
|
Tel:052-938-7601 / Fax:052-938-7602 |
| 愛知県知事免許(1)第24077号 |
|
| 取引態様:仲介 |
|
|
駐輪場 月額 0円 ※希望者のみ