[ 建物外観 ]
[ 居室・リビング ]
[ キッチン ]
拡大


陽だまりの丘1丁目戸建
[住居用] 貸家
住所  三重県桑名市陽だまりの丘1丁目412
沿線  養老鉄道「播磨」徒歩42分  
 関西線「桑名」バス16分「筒尾六丁目」停 徒歩10分  
部屋 間取
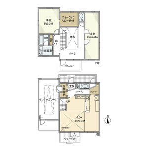
[ 戸建 ] 2LDK (127.02m2)
賃料 管理費・共益費
120,000円 なし
敷金/礼金 保証金/償却・敷引
2ヶ月/なし なし/なし
契約期間
定期借家 3年間
 構造 木造 地上2階  状態 退去予定
 築年月 2014年04月  入居可能時期 2026年6月下旬
 方位 南向き  情報更新日 2026-04-15 02:35:56
 その他
 駐車場 敷地内駐車場/空き2台
[全長]0/[全幅]0/[全高]0/[総重量]0
諸経費
保証会社 保証会社利用必須 リロ家賃サービス
保証会社 要:初回 賃料総額100%+月額 賃料総額2%(最低1,000円)
保険 保険要加入 住宅保険 2年契約 25,500円
リロサポプラス 2,500 円 [月額]
駐車場登録料 1台(利用時のみ) 11,000 円 [契約時]
借家人賠償保険 24ヵ月 25,500 円 [契約時]
除菌施工料(契約時のみ) 19,800 円 [契約時]
設備・条件
条件 ○ 2人入居可能 ○ 保証会社利用必須
キッチン ○ 給湯器 ○ IHクッキングヒーター(3口以上) ○ システムキッチン ○ カウンターキッチン ○ 食器洗浄乾燥機
水廻り ○ 風呂 ○ トイレ ○ 洗面台 ○ シャワートイレ ○ 追い焚き ○ 洗髪洗面化粧台 ○ バス・トイレ別 ○ 洗濯機置場(室内)
収納 ○ ウォークインクローゼット
放送・通信 ○ ケーブルTV
セキュリティ ○ インターホン(カメラ付き)
その他 ○ 水道(公営) ○ 排水(公共下水) ○ バルコニー/ベランダ ○ 専用庭付 ○ フローリング ○ オール電化
物件ポイント
2026020127/一時使用賃貸借契約(転勤留守宅)/退去時は、借主負担にてハウスクリーニング実施(当社手配)/除菌施工料(契約時のみ)19800円/リロサポプラス 2500円/月額※6ヶ月未満で解約した場合、賃料の0.5ヶ月分を申受けます。/ルームシェア及び短期契約不可。/住居以外の用途(事務所・寮・塾・集会所・民泊など)としての使用厳禁/お申し込み後、審査の結果お断りさせて頂く場合がございます。/■現況と図面に相違がある場合は、現況優先となります。【全ての特約が記載できない為、必ず最新の物件案内図をお取り寄せ下さい。】※個人申込みは電子契約となります。(一部対象外あり)
暮らす人をやさしく包み込むくつろぎの家
周辺環境
小学校 「2026020127」 (0m)
その他 「商店街」 (4496m)
ドラッグストア 「ドラッグストア」 (450m)
住マイル株式会社 ホームメイトFC浄心駅前店
愛知県名古屋市西区浄心1丁目1-48 浄心ステーションビル南館1F
Tel:052-938-7601  / 
Fax:052-938-7602
愛知県知事免許(1)第24077号
  • 所属団体:
  •  (公社)全日本不動産協会
  • 不動産公正取引協議会:
  •  東海不動産公正取引協議会加盟
取引態様:仲介
お気に入り追加 お問合せ
とじる
prev next
/
[ 建物外観 ]
[ 居室・リビング ]
[ キッチン ]
とじる