[ 建物外観 ]
[ 駐車場 ]
[ 敷地内/建物 ]
[ トイレ ]
[ 敷地内/建物 ]
[ 洋室 ]
[ 洋室 ]
[ キッチン ]
[ 敷地内/建物 ]
拡大


小呂町5丁目店舗
[事業用] 店舗・事務所
住所  愛知県岡崎市小呂町字5丁目54-1
沿線  名鉄本線「東岡崎」自動車9分 2.9km  
[ バス ]「名鉄バス 小呂町」停 徒歩3分
部屋 間取
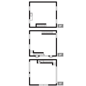
1(1階部分) テナント (121.8m2)
賃料 管理費・共益費
220,000円 0円
敷金/礼金 保証金/償却・敷引
なし/1ヶ月 2ヶ月/1ヶ月
契約期間
普通借家 3年間
 構造 鉄骨鉄筋コンクリート造 地上3階  状態 空室
 築年月 1985年11月  入居可能時期 即入
 方位 東南向き  情報更新日 2025-12-20 09:58:02
 その他
 駐車場 敷地内駐車場/無料駐車場付
敷地内駐車場込み
諸経費
保証会社 保証会社利用必須 ジェイリース
初回保証料100%、継続保証料10%(年間)、振替手数料330円(税込)ジェイリースのJ-AKINAIとなります。
保険 保険要加入
町内会費 実費
更新事務手数料 22,000円 [更新時] 3年毎の更新
設備・条件
条件 ○ 事務所利用可能 ○ 保証会社利用必須
水廻り ○ トイレ(汲取)
その他 ○ 電気 ○ 水道(公営) ○ 排水(汲取)
物件ポイント
視認性が高く、塾などにおすすめです。
国道一号線・東名岡崎インター近く!
ジェイリースのJ-AKINAIとなります。
図面と現況が異なる場合は現況優先とします。
別紙特約がございます。賃貸借契約書及び重要事項説明書にご使用ください。
周辺環境
コンビニエンスストア 「ファミリーマート岡崎小呂町店」 (20m)
銀行・信用金庫 「岡崎信用金庫 稲熊支店」 (950m)
役所 「岡崎市役所」 (2400m)
株式会社アプリシエイト
愛知県名古屋市東区泉2丁目11-4 IZUMI-SO
Tel:052-211-7971 / 
Fax:052-211-7972
愛知県知事免許(2)第23965号
  • 賃貸住宅管理番号:
  •  国土交通大臣(1)第5707号
  • 所属団体:
  •  (公社)愛知県宅地建物取引業協会
  • 不動産公正取引協議会:
  •  東海不動産公正取引協議会加盟
取引態様:仲介
お気に入り追加 お問合せ
とじる
prev next
/
[ 建物外観 ]
[ 駐車場 ]
[ 敷地内/建物 ]
[ トイレ ]
[ 敷地内/建物 ]
[ 洋室 ]
[ 洋室 ]
[ キッチン ]
[ 敷地内/建物 ]
とじる