

|
プレサンス桜山駅前アフォード [住居用] マンション |
|||||
|
|||||
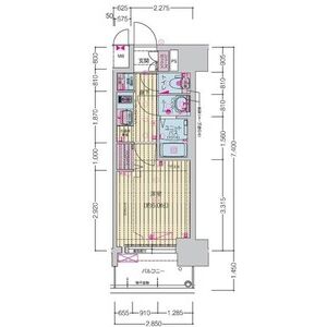
| 部屋 | 間取 | ||||
| 0805(8階部分) | 1K (21.13m2) | ||||
| 賃料 | 管理費・共益費 | ||||
| 58,600円 | 6,760円 | ||||
| 敷金/礼金 | 保証金/償却・敷引 | ||||
| なし/なし | なし/なし | ||||
| 契約期間 | |||||
| 1年間 | |||||
| ● 構造 | 鉄筋コンクリート造 142戸 地上15階 | ● 状態 | 空室 新築 |
| ● 築年月 | 2025年08月 | ● 入居可能時期 | 即入 |
| ● 方位 | 北向き | ● 情報更新日 | 2025-12-17 02:35:52 |
| ● その他 | |||
| ● 駐車場 | |||
| 諸経費 | ||
| 保証会社 |
保証会社利用必須 株式会社プレサンスギャランティギャランティ 初回50% 月1.5%・セーフティー 初回50% 年10 |
|
| 保険 | 保険要加入 1年契約 | |
| プレサポ24 | 990円 | |
| カギ調整代 | 22,000円 | |
| 条件 | ○ 保証会社利用必須 |
| キッチン | ○ 給湯器 |
| 水廻り | ○ 浴室乾燥機 ○ シャワートイレ ○ 洗髪洗面化粧台 ○ 洗濯機置場 |
| 冷暖房 | ○ エアコン |
| 収納 | ○ シューズボックス |
| 放送・通信 | ○ BS ○ ケーブルTV |
| セキュリティ | ○ オートロック ○ 宅配BOX ○ 防犯カメラ ○ インターホン(カメラ付き) |
| その他 | ○ エレベーター ○ 照明 ○ 24時間換気システム |
| 株式会社アプリシエイト |
| 愛知県名古屋市東区泉2丁目11-4 IZUMI-SO |
|
Tel:052-211-7971 / Fax:052-211-7972 |
| 愛知県知事免許(2)第23965号 |
|
| 取引態様:仲介 |
|
|
※保証会社加入必須(法人は相談):初回50%・毎月1.5% / 外国籍(グローバルプラン)初回100%・毎月2%※火災保険:個人11.000円〜/1年 法人20,000円(40㎡以上は25,200円)/2年※現況優先※無料Wi-Fi(UCOM光レジデンス)※短期違約1年未満2ヵ月※ハウスクリーニング代:35,000円〜(退去時税別)※プレサポ加入必須900円(税別)