[ 建物外観 ]
[ その他 ]
[ その他 ]
[ その他部屋・スペース ]
[ 居室・リビング ]
[ キッチン ]
[ バス ]
[ その他 ]
[ その他 ]
[ その他部屋・スペース ]
[ その他 ]
拡大


レオパレスGreenwood
[住居用] アパート
住所  岩手県北上市本石町1丁目丁目
沿線  東北線「北上」徒歩21分  
 北上線「柳原」徒歩7分  
部屋 間取
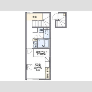
202 (2階部分) 1K (28.02m2)
賃料 管理費・共益費
68,000円 4,500円
敷金/礼金 保証金/償却・敷引
なし/2ヶ月 なし/なし
契約期間
 構造 木造 30戸 地上2階  状態 退去予定
 築年月 2008年04月  入居可能時期 2026年5月下旬
 方位 -----  情報更新日 2026-03-31 05:35:17
 その他
 駐車場 敷地内駐車場/空き1台/7,700円
諸経費
保険 保険要加入 住宅保険
鍵交換費用 16,500 円
室内清掃費用 41,800 円
設備・条件
キッチン ○ 給湯器
水廻り ○ 浴室乾燥機 ○ シャワートイレ ○ バス・トイレ別 ○ 洗濯機置場(室内)
冷暖房 ○ エアコン(冷暖房)
放送・通信 ○ インターネット対応
セキュリティ ○ インターホン(カメラ付き)
その他 ○ 自転車置場 ○ 家具付 ○ 家電付
物件ポイント
環境維持費:1ヶ月550円(税込)、鍵交換費:ご契約時16500円(税込)、退去時清掃費:41800円(税込)、インターネット利用料:有料、更新手数料:16500円(税込)、保証委託料:必要、引落手数料:524円(税込)
インターネット使い放題・U-NEXT一般作品見放題プラン有
有限会社亀田不動産
岩手県北上市大通り3丁目10-9
Tel:0197-63-6784  / 
Fax:0197-63-6784
岩手県知事免許(10)第1225号
取引態様:仲介
お気に入り追加 お問合せ
とじる
prev next
/
[ 建物外観 ]
[ その他 ]
[ その他 ]
[ その他部屋・スペース ]
[ 居室・リビング ]
[ キッチン ]
[ バス ]
[ その他 ]
[ その他 ]
[ その他部屋・スペース ]
[ その他 ]
とじる