[ 建物外観 ]
[ エントランス ]
[ エントランス ]
[ ロビー ]
[ その他共有部分 ]
[ エントランス ]
[ 駐車場 ]
[ 駐車場 ]
[ 自転車置場 ]
[ 建物外観 ]
拡大


スプランディッド上本町WESTⅡ
[住居用] マンション
住所  大阪府大阪市天王寺区生玉町9-2
沿線  大阪市高速軌道谷町線「谷町九丁目」徒歩2分  
 大阪市高速軌道千日前線「谷町九丁目」徒歩2分  
 近鉄奈良線「大阪上本町」徒歩8分  
部屋 間取
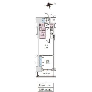
1405 (14階部分) 2K (35.2m2)
賃料 管理費・共益費
116,000円 10,000円
敷金/礼金 保証金/償却・敷引
なし/なし なし/なし
契約期間
普通借家
 構造 鉄筋コンクリート造 84戸 地上15階  状態 空室
 築年月 2025年12月  入居可能時期 2026年5月下旬
 方位 東向き  情報更新日 2026-05-03 11:35:20
 その他 ・法人契約可
 駐車場 バイク2 原付屋根有り4 原付屋 根無2
諸経費
保証会社 保証会社利用必須
【個人契約の場合】
【1番手】信和CM保証(信和保証プラン) 初回保証料:月額総額60% 月額手数料:月額総賃料の1%(最低1,000円) 年間保証料:10,000円 
※初回保証料は決済金でのお預かりとなります。
【2番手】全保連 初回保証料:月額総額60% 月額保証料:①法人契約1,700円 ②個人契約(火災保険付きプラン):2,490円
【法人契約の場合】
※法人契約で保証会社加入の場合は全保連をお選びください。
【留学生専用プラン(連帯保証人不要)】
ジェイリース 初回保証料:月額総賃料100% 月額保証料:330円(引き落とし手数料込) 年間保証料:10,000円
※初回保証料は決済金でのお預かりとなります。
※審査時に在留カードが必須になります。
※緊急連絡先は本国のご親族+日本国内の友人知人(国籍問わず)のお二人が必要になります。
 (本国のご親族、日本国内の友人知人共に住所・生年月日・電話番号が必要になります。)
保険 保険要加入 火災保険 2年契約 20,000円(住まいのかけつけサービスセットプラン)
アクト安心ライフ 16,500 円 [契約時] (2年契約)火災保険を法人包括保険使用の際にご加入頂きます
自転車 330 円 全84台
バイク~50cc 5,500 円 全6台
バイク50cc~ 8,800 円 全2台
駐車場 36,300 円
短期解約違約金 1 ヶ月 [解約時] (対象:1年6カ月未満の解約は賃料の1ヶ月分)
ハウスクリーニング代(退去時に徴収) 49,500 円 [退去時] 専有面積~30㎡未満※消費税法の改正により消費税率が変更された場合、変更後の税率に従い支払うものとする。
ハウスクリーニング代(退去時に徴収) 60,500 円 [退去時] 専有面積30㎡以上~50㎡未満※消費税法の改正により消費税率が変更された場合、変更後の税率に従い支払うものとする。
ハウスクリーニング代(退去時に徴収) 71,500 円 [退去時] 専有面積50㎡以上~60㎡未満※消費税法の改正により消費税率が変更された場合、変更後の税率に従い支払うものとする。
ハウスクリーニング代(退去時に徴収) 82,500 円 [退去時] 専有面積60㎡以上~70㎡未満※消費税法の改正により消費税率が変更された場合、変更後の税率に従い支払うものとする。
ハウスクリーニング代(退去時に徴収) 93,500 円 [退去時] 専有面積70㎡以上~80㎡未満※消費税法の改正により消費税率が変更された場合、変更後の税率に従い支払うものとする。
設備・条件
条件 ○ ペット相談(小型犬、猫可) ○ 外国人契約可能 ○ 2人入居可能 ○ 子供可 ○ 保証会社利用必須
キッチン ○ 給湯器(ガス) ○ ガスコンロ(2口) ○ システムキッチン
水廻り ○ 風呂(ユニットバス) ○ トイレ(水洗) ○ 洗面台(独立) ○ 浴室乾燥機 ○ 暖房便座 ○ シャワートイレ ○ 洗髪洗面化粧台 ○ バス・トイレ別 ○ 洗濯機置場(室内)
冷暖房 ○ エアコン(冷暖房)
収納 ○ シューズボックス
放送・通信 ○ BS ○ CS ○ インターネット対応 ○ ネット使用料不要 ○ Wi-Fi
セキュリティ ○ オートロック ○ 宅配BOX ○ 防犯カメラ ○ インターホン
その他 ○ 専用ごみ置場 ○ エレベーター(2基) ○ オートバイ駐輪場 ○ 自転車置場 ○ 電気 ○ ガス(都市ガス) ○ 水道(公営) ○ 排水(公共下水) ○ バルコニー/ベランダ ○ 網戸 ○ フローリング
物件ポイント
2026年4月10日留学生相談可になりました!(申込時に在留カード必須)
2026年3月21日申込分より賃料減額いたしました!!!
※リアプロ記載の賃料が減額後の賃料になります。
※3月20日以前にお申込み・ご契約いただいている区画について、減額等の交渉は一切受け付けておりません。予めご了承ください。

☆☆☆礼金減額+AD増額キャンペーン実施中☆☆☆
内容:
・礼金1ヶ月→礼金0ヶ月!
・AD2ヶ月→AD3ヶ月!(フリーレント振替可※賃料部分のみ)
対象:全室
期間:2026年1月8日~2026年5月末日
対象:2026年1月8日~2026年5月末日までの申込に限る
※入居可能時期についてはリフォーム状況によって変更が生じる場合がございます。予めご了承下さい。
【ペット飼育時の注意】※2026年3月8日申込分より適用
・小型犬、猫いずれか2匹まで
・小型犬、猫飼育の場合は1頭あたり共益費3,000円増額
・ペット飼育時に1頭あたり礼金30,000円(非課税)増額
・成獣の状態で体長60cm以下(鼻先より尾のつけ根まで)
・事前に種類の確認、契約時に「ペット飼育に関する細則」「ペット飼育誓約書」、写真や予防接種を受けた証明書等の提出が必須
・その他の小動物(檻やケージ、水槽等で飼うことを想定する小動物)については担当までご相談くださいませ。
◆解約予告1ヶ月前(月割り計算)
◆高温差し湯機能(A1・A2・C・Crタイプのみ)
◆3口コンログリル付(A1・A2・C・Crタイプのみ)
◆2口コンログリル無(B1・B2タイプ)
◆エアコン3基(A1・A2タイプ)、2基(B1・B2・C・Crタイプ)
インターネット備考:つなぐネットコミュニケーションズ
周辺環境
コンビニエンスストア 「セブン-イレブン 天王寺生玉町店」 (190m)
スーパーマーケット 「KOHYO上本町店」 (700m)
ショッピングセンター 「うえほんまちハイハイタウン」 (400m)
小学校 「大阪市立生魂小学校」 (500m)
中学校 「大阪市立上町中学校」 (900m)
病院 「大阪赤十字病院」 (1200m)
合同会社 TEIAN
大阪府大阪市阿倍野区阿倍野筋3丁目10-1 あべのベルタ218
Tel:06-6636-5551  / 
Fax:06-6634-3091
大阪府知事免許(1)第62253号
  • 所属団体:
  •  (一社)大阪府宅地建物取引業協会
取引態様:仲介
お気に入り追加 お問合せ
とじる
prev next
/
[ 建物外観 ]
[ エントランス ]
[ エントランス ]
[ ロビー ]
[ その他共有部分 ]
[ エントランス ]
[ 駐車場 ]
[ 駐車場 ]
[ 自転車置場 ]
[ 建物外観 ]
とじる