|
スプランディッド上本町WESTⅡ [住居用] マンション |
|||||
|
|||||
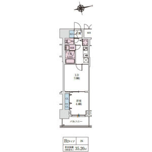
| 部屋 | 間取 | ||||
| 805(8階部分) | 2K (35.2m2) | ||||
| 賃料 | 管理費・共益費 | ||||
| 118,000円 | 10,000円 | ||||
| 敷金/礼金 | 保証金/償却・敷引 | ||||
| なし/なし | なし/なし | ||||
| 契約期間 | |||||
| 普通借家 | |||||
| ● 構造 | 鉄筋コンクリート造 84戸 地上15階 | ● 状態 | 新築 建築中 |
| ● 築年月 | 2025年12月 | ● 入居可能時期 | 2025年12月16日 |
| ● 方位 | 東向き | ● 情報更新日 | 2025-11-29 18:06:57 |
| ● その他 | ・法人契約可 | ||
| ● 駐車場 |
バイク2 原付屋根有り4 原付屋 根無2 |
||
| 諸経費 | ||
| 保証会社 |
保証会社利用必須 【個人契約の場合】 【1番手】信和CM保証 初回保証料:月額総額50% 月額手数料:1,000円 年間保証料:10,000円 ※初回保証料は決済金でのお預かりとなります。 【2番手】全保連 初回保証料:月額総額60% 月額保証料:①法人契約1,700円 ②個人契約(火災保険付きプラン):2,490円 【法人契約の場合】 ※法人契約で保証会社加入の場合は全保連をお選びください。 |
|
| 保険 | 保険要加入 火災保険 2年契約 20,000円(住まいのかけつけサービスセットプラン) | |
| アクト安心ライフ | 16,500円 [契約時] (2年契約)火災保険を法人包括保険使用の際にご加入頂きます | |
| 自転車 | 330円 全84台 | |
| バイク~50cc | 5,500円 全6台 | |
| バイク50cc~ | 8,800円 全2台 | |
| 駐車場 | 36,300円 | |
| 短期解約違約金 | 1ヶ月 [解約時] (対象:1年6カ月未満の解約は賃料の1ヶ月分) | |
| ハウスクリーニング代(退去時に徴収) | 49,500円 [退去時] 専有面積~30㎡未満※消費税法の改正により消費税率が変更された場合、変更後の税率に従い支払うものとする。 | |
| ハウスクリーニング代(退去時に徴収) | 60,500円 [退去時] 専有面積30㎡以上~50㎡未満※消費税法の改正により消費税率が変更された場合、変更後の税率に従い支払うものとする。 | |
| ハウスクリーニング代(退去時に徴収) | 71,500円 [退去時] 専有面積50㎡以上~60㎡未満※消費税法の改正により消費税率が変更された場合、変更後の税率に従い支払うものとする。 | |
| ハウスクリーニング代(退去時に徴収) | 82,500円 [退去時] 専有面積60㎡以上~70㎡未満※消費税法の改正により消費税率が変更された場合、変更後の税率に従い支払うものとする。 | |
| ハウスクリーニング代(退去時に徴収) | 93,500円 [退去時] 専有面積70㎡以上~80㎡未満※消費税法の改正により消費税率が変更された場合、変更後の税率に従い支払うものとする。 | |
| 条件 | ○ ペット相談(小型犬、猫可) ○ 2人入居可能 ○ 子供可 ○ 保証会社利用必須 |
| キッチン | ○ 給湯器(ガス) ○ ガスコンロ(2口) ○ システムキッチン |
| 水廻り | ○ 風呂(ユニットバス) ○ トイレ(水洗) ○ 洗面台(独立) ○ 浴室乾燥機 ○ 暖房便座 ○ シャワートイレ ○ 洗髪洗面化粧台 ○ バス・トイレ別 ○ 洗濯機置場(室内) |
| 冷暖房 | ○ エアコン(冷暖房) |
| 収納 | ○ シューズボックス |
| 放送・通信 | ○ BS ○ CS ○ インターネット対応 ○ ネット使用料不要 ○ Wi-Fi |
| セキュリティ | ○ オートロック ○ 宅配BOX ○ 防犯カメラ ○ インターホン |
| その他 | ○ 専用ごみ置場 ○ エレベーター(2基) ○ オートバイ駐輪場 ○ 自転車置場 ○ 電気 ○ ガス(都市ガス) ○ 水道(公営) ○ 排水(公共下水) ○ バルコニー/ベランダ ○ 網戸 ○ フローリング |
| 周辺環境 | |
| コンビニエンスストア 「セブン-イレブン 天王寺生玉町店」 (190m) | |
| スーパーマーケット 「KOHYO上本町店」 (700m) | |
| ショッピングセンター 「うえほんまちハイハイタウン」 (400m) | |
| 小学校 「大阪市立生魂小学校」 (500m) | |
| 中学校 「大阪市立上町中学校」 (900m) | |
| 病院 「大阪赤十字病院」 (1200m) | |
| 合同会社 TEIAN |
| 大阪府大阪市阿倍野区阿倍野筋3丁目10-1 あべのベルタ218 |
|
Tel:06-6636-5551 / Fax:06-6634-3091 |
| 大阪府知事免許(1)第62253号 |
|
| 取引態様:仲介 |
|
|
内容:礼金1ヶ月→礼金0ヶ月! AD2ヶ月→AD3ヶ月!
対象:2.5号室タイプ
期間:2025年11月30日~2025年12月末日
対象:2025年11月30日~2025年12月末日までの申込に限る
※入居可能時期についてはリフォーム状況によって変更が生じる場合がございます。予めご了承下さい。
【ペット飼育時の注意】
・小型犬、猫いずれか1匹まで
・小型犬の場合は共益費3,000円増額 猫の場合は共益費10,000円増額
・ペット飼育時礼金30,000円(非課税)増額
・成獣の状態で体長50cm以下(鼻先より尾のつけ根まで)
・事前に種類の確認、契約時に写真や予防接種を受けた証明書等の提出が必須
◆解約予告1ヶ月前(月割り計算)
◆高温差し湯機能(A1・A2・C・Crタイプのみ)
◆3口コンログリル付(A1・A2・C・Crタイプのみ)
◆2口コンログリル無(B1・B2タイプ)
◆エアコン3基(A1・A2タイプ)、2基(B1・B2・C・Crタイプ)
インターネット備考:つなぐネットコミュニケーションズ