

|
リアライズ今里南 [住居用] マンション |
|||||
|
|||||
| 部屋 | 間取 | ||||
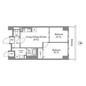
| 0111(1階部分) | 2DK (46.61m2) | ||||
| 賃料 | 管理費・共益費 | ||||
| 124,000円 | 12,000円 | ||||
| 敷金/礼金 | 保証金/償却・敷引 | ||||
| なし/なし | なし/なし | ||||
| 契約期間 | |||||
| 2年間 | |||||
| ● 構造 | 鉄筋コンクリート造 120戸 地上10階 | ● 状態 | 空室 新築 |
| ● 築年月 | 2025年09月 | ● 入居可能時期 | 即入 |
| ● 方位 | 北向き | ● 情報更新日 | 2025-12-30 08:13:02 |
| ● その他 | |||
| ● 駐車場 |
敷地内駐車場/空きなし |
||
| 諸経費 | ||
| 保証会社 |
保証会社利用必須 株式会社エポスカード 保証会社:①エポス30%②ニッポンインシュア100% |
|
| 保険 | 保険要加入 2年契約 22,000円 | |
| 退去時RC代 | 55,000円 [退去時] | |
| 条件 | ○ ペット相談 ○ 外国人契約可能 ○ 2人入居可能 ○ 保証会社利用必須 |
| キッチン | ○ 給湯器 ○ システムキッチン |
| 水廻り | ○ 洗面台(独立) ○ 浴室乾燥機 ○ 洗髪洗面化粧台 ○ バス・トイレ別 ○ 洗濯機置場(室内) |
| 冷暖房 | ○ エアコン |
| 収納 | ○ シューズボックス |
| 放送・通信 | ○ ケーブルTV |
| セキュリティ | ○ オートロック ○ 宅配BOX ○ 防犯カメラ |
| その他 | ○ エレベーター ○ オートバイ駐輪場 ○ 自転車置場 ○ 電気 ○ ガス(都市ガス) ○ バルコニー/ベランダ ○ フローリング |
| 合同会社 TEIAN |
| 大阪府大阪市阿倍野区阿倍野筋3丁目10-1 あべのベルタ218 |
|
Tel:06-6636-5551 / Fax:06-6634-3091 |
| 大阪府知事免許(1)第62253号 |
|
| 取引態様:仲介 |
|
|
下水道・冷房・ダブルロックドア・人感センサー付照明・シャワー・クローゼット・クッションフロア