[ ]
バーチャルモデル家具 (1K・4号系統)
[ ]
バーチャルモデル家具 (1DK・5号系統)
[ その他部屋・スペース ]
写真は1504号室です
[ ]
写真は1401号室です
[ ]
写真は1401号室です
[ ]
写真は1401号室です
[ ]
写真は1401号室です
[ ]
写真は1401号室です
[ ]
写真は1401号室です
[ ]
写真は1401号室です
[ ]
写真は1401号室です
拡大


ブランシエスタ泉
[住居用] マンション
住所  愛知県名古屋市東区泉1丁目21番17号
沿線  桜通線「高岳」徒歩3分  
 桜通線「久屋大通」徒歩5分  
 東山線「栄」徒歩10分  
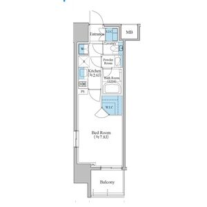
部屋 間取
0901 (9階部分) 1K (27.92m2)
賃料 管理費・共益費
79,000円 8,000円
敷金/礼金 保証金/償却・敷引
なし/なし なし/なし
契約期間
2年間
 構造 鉄筋コンクリート造 114戸 地上15階  状態 退去予定
 築年月 2018年01月  入居可能時期 相談
 方位 西向き  情報更新日 2026-02-12 05:51:35
 その他
 駐車場 敷地内駐車場/空きなし
諸経費
保証会社 保証会社利用必須
【レジデンシャルサービス】(収納代行プラン)
 ○初回保証料 : 保証人有30%・無50%(最低保証料20,000円)
 ○更新料 : 25%/年  ○口座振替手数料:220円/月
保険 保険要加入 18,000円(システムズ指定)
カギ交換費用 22,000 円 [契約時]
設備・条件
位置 ○ 角部屋
条件 ○ ペット相談 ○ 保証会社利用必須
キッチン ○ 給湯器(ガス) ○ ガスコンロ(2口) ○ システムキッチン
水廻り ○ 風呂 ○ 洗面台 ○ 浴室乾燥機 ○ シャワートイレ ○ 追い焚き ○ バス・トイレ別 ○ 洗濯機置場(室内)
収納 ○ シューズボックス
放送・通信 ○ BS ○ CS ○ ケーブルTV
セキュリティ ○ オートロック ○ インターホン(カメラ付き)
その他 ○ エレベーター ○ オートバイ駐輪場 ○ 自転車置場 ○ バルコニー/ベランダ ○ フローリング
物件ポイント
①更新事務手数料:22,000円(税込)
②室内クリーニング代(退去時):39,600円+20㎡以上は1㎡毎に1,430円加算(税込)
③空調クリーニング代(退去時):16,500円(税込)/台
④短期解約違約金:2年未満→賃料・共益費1ヶ月分
⑤解約時2ヶ月前予告(日割無)  ⑥法人契約時は敷金・礼金、各1ヶ月要
 ※④~⑥法人規定等に抵触する場合相談可
●ペット飼育相談可(敷金+1ヶ月) ※小型犬・猫どちらか1匹のみ
≪注意≫
・写真は一例です。カラーや仕様詳細等は内覧時にご確認ください。
・駐輪場利用の場合は初回登録手続き要 [初回登録料2,200円(税込)]
・駐車場について、リアプロでは敷地内と記載されてしまいますが、敷地外の駐車場となります
【審査時必要書類】①写真付身分証 ②在職確認書類[社会保険証] ③収入証明[源泉or給与明細3ヶ月分]  ※入社前の場合②③に代わり採用通知を提出 ※保証人の分も必要(いる場合)
★人気の泉1丁目エリア! / ★駅徒歩3分!ペット飼育可! / ★Wi-Fi無料!
エレベータ 各階有 ・ 冷暖房 一部設置済 ・ 高温差し湯式 ・ シューズボックス(天井高)
株式会社 さと賃
愛知県名古屋市中区栄4丁目15-14
Tel:052-990-9430  / 
Fax:052-990-9431
愛知県知事免許(1)第24868号
  • 賃貸住宅管理番号:
  •  国土交通大臣 (0 )第0号
  • 所属団体:
  •  (公社)愛知県宅地建物取引業協会
  • 不動産公正取引協議会:
  •  東海不動産公正取引協議会加盟
取引態様:仲介
お気に入り追加 お問合せ
とじる
prev next
/
[ ]
バーチャルモデル家具 (1K・4号系統)
[ ]
バーチャルモデル家具 (1DK・5号系統)
[ その他部屋・スペース ]
写真は1504号室です
[ ]
写真は1401号室です
[ ]
写真は1401号室です
[ ]
写真は1401号室です
[ ]
写真は1401号室です
[ ]
写真は1401号室です
[ ]
写真は1401号室です
[ ]
写真は1401号室です
[ ]
写真は1401号室です
とじる