|
パークアクシス名駅南 [住居用] マンション |
|||||
|
|||||
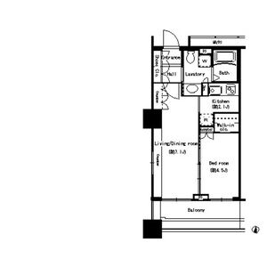
| 部屋 | 間取 | ||||
| 505 (5階部分) | 1DK (35.1m2) | ||||
| 賃料 | 管理費・共益費 | ||||
| 83,000円 | 7,000円 | ||||
| 敷金/礼金 | 保証金/償却・敷引 | ||||
| 1ヶ月/1ヶ月 | なし/なし | ||||
| 契約期間 | |||||
| ● 構造 | 鉄筋コンクリート造 169戸 地上15階 | ● 状態 | 空室 |
| ● 築年月 | 2006年02月 | ● 入居可能時期 | 即入 |
| ● 方位 | 南向き | ● 情報更新日 | 2026-01-31 07:32:48 |
| ● その他 | |||
| ● 駐車場 |
敷地内駐車場/29,700円 礼金なし、敷金なし |
||
| 諸経費 | ||
| 保険 | 保険要加入 | |
| 室内清掃費 | 46,200 円 | |
| 鍵交換費 | 16,500 円 | |
| 口座振替事務手数料 | 110 円 [月額] | |
| 条件 | ○ 保証会社利用可能 |
| キッチン | ○ システムキッチン |
| 水廻り | ○ 風呂 ○ 浴室乾燥機 ○ 追い焚き ○ バス・トイレ別 ○ 洗濯機置場(室内) |
| 冷暖房 | ○ エアコン |
| 収納 | ○ ウォークインクローゼット |
| 放送・通信 | ○ BS ○ CS ○ ケーブルTV |
| セキュリティ | ○ オートロック ○ 宅配BOX ○ 管理人(日勤) |
| その他 | ○ 専用ごみ置場 ○ エレベーター ○ オートバイ駐輪場 ○ 電気 ○ ガス(都市ガス) ○ 水道(公営) ○ 排水(公共下水) ○ バルコニー/ベランダ |
| 周辺環境 | |
| コンビニエンスストア 「ローソン名駅南2丁目店」 (227m) | |
| その他 「エディオン名古屋本店」 (362m) | |
| その他 「CoCo壱番屋柳橋店」 (430m) | |
| その他 「三菱東京UFJ銀行柳橋支店」 (538m) | |
| その他 「名古屋四季劇場」 (207m) | |
| その他 「ダイコクドラッグ名駅店」 (726m) | |
| 株式会社 さと賃 |
| 愛知県名古屋市中区栄4丁目15-14 |
|
Tel:052-990-9430 / Fax:052-990-9431 |
| 愛知県知事免許(1)第24868号 |
|
| 取引態様:仲介 |
|
|
バルコニ・CATV テレビ・グリル・インターネット接続可・
更新事務手数料:11,000円/税込(2年毎)・鍵交換代:16,500円/税込(契約時)、【保証人代行】初回保証委託料(最低15,000円):月額賃料等の50%、 2年目以降:10,000円/年