[ 建物外観 ]
[ 玄関 ]
[ 玄関 ]
[ エントランス ]
[ その他共有部分 ]
[ その他共有部分 ]
[ トイレ ]
[ その他共有部分 ]
廊下
拡大


中央広小路ビル
[事業用] 店舗・事務所
住所  愛知県名古屋市中区錦3丁目21-18
沿線  東山線「栄」徒歩5分  
部屋 間取
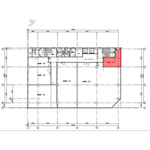
301(3階部分) テナント (30.45m2)
賃料 管理費・共益費
111,441円 35,459円
敷金/礼金 保証金/償却・敷引
なし/----- 6ヶ月/-----
契約期間
定期借家 2030年12月31日まで
 構造 鉄骨鉄筋コンクリート造 29戸 地上5階 地下2階  状態 空室
 築年月 1960年07月  入居可能時期 相談
 方位 -----  情報更新日 2025-12-05 10:46:25
 その他
 駐車場 なし
諸経費
保証会社 ジェイリース
保証会社利用必須 K-net
初回保証料:月額総賃料100%
保険 保険要加入
設備・条件
冷暖房 ○ エアコン ○ 暖房
その他 ○ エレベーター(2基)
物件ポイント
★重飲食系は不可
夜20時以降シャッター閉まりトイレも使用不可になります。


株式会社 さと賃
愛知県名古屋市中区栄4丁目15-14
Tel:052-990-9430 / 
Fax:052-990-9431
愛知県知事免許(1)第24868号
  • 賃貸住宅管理番号:
  •  国土交通大臣(0)第0号
  • 所属団体:
取引態様:仲介
お気に入り追加 お問合せ
とじる
prev next
/
[ 建物外観 ]
[ 玄関 ]
[ 玄関 ]
[ エントランス ]
[ その他共有部分 ]
[ その他共有部分 ]
[ トイレ ]
[ その他共有部分 ]
廊下
とじる