[ 建物外観 ]
外観
[ エントランス ]
エントランス
拡大


LaDouceur本郷
[住居用] マンション
住所  愛知県名古屋市名東区本郷3丁目149-1
沿線  東山線「本郷」徒歩8分  
 東山線「藤が丘」徒歩10分  
 東山線「上社」徒歩17分  
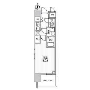
部屋 間取
704 (7階部分) 1K (25.35m2)
賃料 管理費・共益費
57,500円 12,000円
敷金/礼金 保証金/償却・敷引
なし/69,500円 なし/なし
契約期間
普通借家 2年間
 構造 鉄筋コンクリート造 77戸 地上12階  状態 空室
 築年月 2019年09月  入居可能時期 2026年4月下旬
 方位 南向き  情報更新日 2026-04-07 03:16:32
 その他
 駐車場
諸経費
保険
カギ鍵交換代 24,200 円
消毒代 22,000 円 [入居時]
Goodプレミアムα(24Hサポートのみ) 16,500 円 [入居時]
住宅総合保険(フレックス) 18,000 円 [入居時]
設備・条件
位置 ○ 角部屋
キッチン ○ 給湯器 ○ ガスコンロ(2口) ○ システムキッチン
水廻り ○ 洗面台(独立) ○ 浴室乾燥機 ○ シャワートイレ ○ 洗髪洗面化粧台 ○ バス・トイレ別 ○ 洗濯機置場(室内)
冷暖房 ○ エアコン
収納 ○ シューズボックス
放送・通信 ○ BS ○ CS ○ 光ファイバー ○ UHFアンテナ(地デジ用) ○ ネット使用料不要
セキュリティ ○ オートロック ○ 宅配BOX ○ 防犯カメラ ○ インターホン
その他 ○ エレベーター(1基) ○ ガス(都市ガス) ○ バルコニー/ベランダ ○ 24時間換気システム ○ フローリング
物件ポイント
株式会社 さと賃
愛知県名古屋市中区栄4丁目15-14 栄ハイホーム520号室
Tel:052-990-9430  / 
Fax:052-990-9431
愛知県知事免許(1)第24868号
  • 賃貸住宅管理番号:
  •  国土交通大臣 (0 )第0号
  • 所属団体:
  •  (公社)愛知県宅地建物取引業協会
  • 不動産公正取引協議会:
  •  東海不動産公正取引協議会加盟
取引態様:仲介
お気に入り追加 お問合せ
とじる
prev next
/
[ 建物外観 ]
外観
[ エントランス ]
エントランス
とじる