

|
サンシャイン堀田通 [事業用] 店舗・事務所 |
|||||
|
|||||
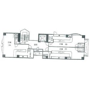
| 部屋 | 間取 | ||||
| 2-A(2階部分) | テナント (35.97m2) | ||||
| 賃料 | 管理費・共益費 | ||||
| 110,000円 | |||||
| 敷金/礼金 | 保証金/償却・敷引 | ||||
| なし/なし | なし/なし | ||||
| 契約期間 | |||||
| 普通借家 2年間 | |||||
| ● 構造 | 鉄筋コンクリート造 14戸 地上6階 | ● 状態 | 空室 |
| ● 築年月 | 1990年10月 | ● 入居可能時期 | 即入 |
| ● 方位 | ----- | ● 情報更新日 | 2025-12-11 06:00:59 |
| ● その他 | |||
| ● 駐車場 | |||
| 諸経費 | ||
| 保証会社 |
保証会社利用必須 ジェイリース株式会社 ジェイリース株式会社初回保証料:月額賃料100%毎年継続保証料:月額賃料10% |
|
| 保険 | 保険要加入 2年契約 800円 | |
| 更新事務手数料 | 16,500円 [更新時] | |
| Fさぽ | 1,650円 [月額] | |
| 条件 | ○ 事務所利用可能 ○ 保証会社利用必須 |
| その他 | ○ ガス(都市ガス) ○ 水道(公営) |
| 株式会社 さと賃 |
| 愛知県名古屋市中区栄4丁目15-14 |
|
Tel:052-990-9430 / Fax:052-990-9431 |
| 愛知県知事免許(1)第24868号 |
|
|
|