

|
S-RESIDENCE浅間町駅前axial(アクシャル)★12月契約限定キャンペーン実施中★ [住居用] マンション |
|||||
|
|||||
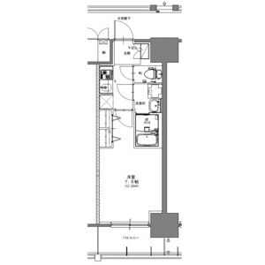
| 部屋 | 間取 | ||||
| 1504(15階部分) | 1K (24.3m2) | ||||
| 賃料 | 管理費・共益費 | ||||
| 67,000円 | 8,000円 | ||||
| 敷金/礼金 | 保証金/償却・敷引 | ||||
|
なし/なし 法人契約の場合礼金1ヶ月 |
なし/なし | ||||
| 契約期間 | |||||
| ● 構造 | 鉄筋コンクリート造 84戸 地上15階 | ● 状態 | 空室 新築 |
| ● 築年月 | 2025年08月 | ● 入居可能時期 | 即入 |
| ● 方位 | ----- | ● 情報更新日 | 2025-11-29 13:57:36 |
| ● その他 | |||
| ● 駐車場 | |||
| 諸経費 | ||
| 保証会社 |
保証会社利用必須 ジェイリース 初回保証料:総家賃の30%(1年毎10,000円) 個人契約の場合は加入必須。大手法人様契約の場合は敷金として家賃1ヶ月分で対応可。 |
|
| 保険 | 保険要加入 アクア少額短期保険 2年契約 18,000円 | |
| カギ交換費用 | 33,000円 [解約時] | |
| 室内清掃費用 | 33,000円 [解約時] | |
| 条件 | ○ 保証会社利用必須 |
| キッチン | ○ 給湯器 ○ ガスコンロ |
| 水廻り | ○ 風呂 ○ トイレ ○ 洗面台 ○ 浴室乾燥機 ○ シャワートイレ ○ バス・トイレ別 |
| 冷暖房 | ○ エアコン |
| 放送・通信 | ○ インターネット対応 ○ ネット使用料不要 ○ Wi-Fi |
| セキュリティ | ○ インターホン |
| その他 | ○ 照明 |
| 株式会社 さと賃 |
| 愛知県名古屋市中区栄4丁目15-14 |
|
Tel:052-990-9430 / Fax:052-990-9431 |
| 愛知県知事免許(1)第24868号 |
|
| 取引態様:仲介 |
|
|
インターネット無料(会社名:スターキャット (Wi-Fi付全戸加入))
駐輪場 月額 0円 ※希望者のみ