

|
S-RESIDENCE庄内通駅前curere(クラーレ) [住居用] マンション |
|||||
|
|||||
| 部屋 | 間取 | ||||
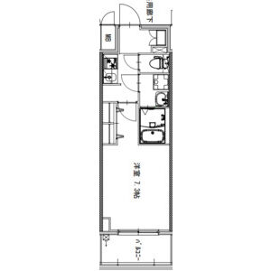
| 605(6階部分) | 1K (23.9m2) | ||||
| 賃料 | 管理費・共益費 | ||||
| 64,500円 | 8,000円 | ||||
| 敷金/礼金 | 保証金/償却・敷引 | ||||
|
なし/なし 法人契約時、敷金1ヶ月 |
なし/なし | ||||
| 契約期間 | |||||
| 普通借家 2年間 | |||||
| ● 構造 | 鉄筋コンクリート造 84戸 地上15階 | ● 状態 | 空室 商談中 新築 |
| ● 築年月 | 2025年12月 | ● 入居可能時期 | 即入 |
| ● 方位 | 東向き | ● 情報更新日 | 2026-01-19 18:20:23 |
| ● その他 | |||
| ● 駐車場 | |||
| 諸経費 | ||
| 保証会社 | 保証会社利用必須 K-net(近畿保証サービス) | |
| 保険 | 保険要加入 アクア少額短期保険 2年契約 18,000円 | |
| 室内清掃費用 | 33,000円 [解約時] | |
| カギ交換費用 | 33,000円 [解約時] | |
| エアコンクリーニング費 | 16,500円 [解約時] | |
| 口座振替手数料 | 330円 [月額] | |
| 駐輪場利用料 | 無料 | |
| 条件 | ○ 保証会社利用必須 |
| キッチン | ○ 給湯器(都市ガス) ○ ガスコンロ(2口) |
| 水廻り | ○ 風呂 ○ トイレ ○ 洗面台 ○ 浴室乾燥機 ○ シャワートイレ |
| 冷暖房 | ○ エアコン |
| 放送・通信 | ○ インターネット対応(回線工事不要・契約不要) |
| セキュリティ | ○ インターホン(カメラ付き) |
| 周辺環境 | |
| コンビニエンスストア 「ファミリーマート 庄内通店」 (0m) | |
| 飲食店 「コメダ珈琲店 庄内通店」 (0m) | |
| 飲食店 「ミスタードーナツ 庄内通ショップ」 (0m) | |
| 株式会社 さと賃 |
| 愛知県名古屋市中区栄4丁目15-14 |
|
Tel:052-990-9430 / Fax:052-990-9431 |
| 愛知県知事免許(1)第24868号 |
|
| 取引態様:仲介 |
|
|
●駐輪場無料