|
NTS金山 [事業用] 店舗(建物一部) |
|||||
|
|||||
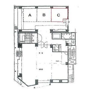
| 部屋 | 間取 | ||||
| 1C(1階部分) | テナント (14.182m2) | ||||
| 賃料 | 管理費・共益費 | ||||
| 70,785円 | 0円 | ||||
| 敷金/礼金 | 保証金/償却・敷引 | ||||
| 6ヶ月/なし | なし/なし | ||||
| 契約期間 | |||||
| 定期借家 5年間 | |||||
| ● 構造 | 鉄骨鉄筋コンクリート造 13戸 地上8階 地下1階 | ● 状態 | 空室 |
| ● 築年月 | 1963年04月 | ● 入居可能時期 | 即入 |
| ● 方位 | ----- | ● 情報更新日 | 2025-11-06 14:44:41 |
| ● その他 | |||
| ● 駐車場 |
なし |
||
| 諸経費 | ||
| 保証会社 | 全保連 | |
| 保険 | 保険要加入 | |
| その他 | ○ エレベーター(1基) |
| 株式会社 さと賃 |
| 愛知県名古屋市中区栄4丁目15-14 |
|
Tel:052-990-9430 / Fax:052-990-9431 |
| 愛知県知事免許(1)第24868号 |
|
| 取引態様:仲介 |
|
|
機械警備あり