

|
CREST TAPP名古屋山王 [住居用] マンション |
|||||
|
|||||
| 部屋 | 間取 | ||||
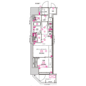
| 606(6階部分) | 1DK (26.38m2) | ||||
| 賃料 | 管理費・共益費 | ||||
| 65,800円 | 10,000円 | ||||
| 敷金/礼金 | 保証金/償却・敷引 | ||||
| なし/なし | なし/なし | ||||
| 契約期間 | |||||
| 2年間 | |||||
| ● 構造 | 鉄筋コンクリート造 地上15階 | ● 状態 | 新築 建築中 |
| ● 築年月 | 2026年02月 | ● 入居可能時期 | 2026年3月02日 |
| ● 方位 | 北向き | ● 情報更新日 | 2026-01-16 15:23:11 |
| ● その他 | |||
| ● 駐車場 | |||
| 諸経費 | ||
| 保証会社 |
保証会社利用必須 クレディセゾン、エルズサポート、他 初回保証料30%~ 年10,000円 【外国籍の方】 ●クレディセゾン:初回保証料30%、更新料10,000円/年 ※永住権なしの場合、オプション加入2,200円/月(翻訳サポート・駆けつけサービス等)、更新料10,000円/年 ●GTN:初回保証料100%、更新料10,000円/年 |
|
| 保険 | 保険要加入 火災保険 2年契約 17,000円 | |
| 契約事務手数料 | 11,000円 [契約時] | |
| 更新事務手数料 | 11,000円 [更新時] | |
| 室内清掃費用 | 38,500円 [退去時] | |
| エアコンクリーニング | 16,500円 [退去時] | |
| 24H駆けつけサービス | 990円 [月額] | |
| 位置 | ○ 角部屋 |
| 条件 | ○ ペット相談(小型犬、猫可) ○ 外国人契約可能 ○ 保証会社利用必須 |
| キッチン | ○ 給湯器 ○ ガスコンロ(2口) |
| 水廻り | ○ 風呂 ○ トイレ ○ 洗面台 ○ 浴室乾燥機 ○ シャワートイレ ○ 洗髪洗面化粧台 ○ バス・トイレ別 ○ 洗濯機置場 |
| 冷暖房 | ○ エアコン(冷暖房) |
| 収納 | ○ シューズボックス |
| 放送・通信 | ○ 光ファイバー ○ ケーブルTV ○ インターネット対応 ○ ネット使用料不要 ○ Wi-Fi |
| セキュリティ | ○ オートロック ○ 宅配BOX ○ 防犯カメラ ○ インターホン(カメラ付き) |
| その他 | ○ 専用ごみ置場 ○ エレベーター ○ 電気 ○ ガス(都市ガス) ○ 水道 ○ 排水 ○ バルコニー/ベランダ ○ 分譲タイプ |
| 株式会社 さと賃 |
| 愛知県名古屋市中区栄4丁目15-14 |
|
Tel:052-990-9430 / Fax:052-990-9431 |
| 愛知県知事免許(1)第24868号 |
|
|
|
間取りは左右反転
【工事中の内覧について】
・別紙に従い、事前予約が必要です(事前予約のない内覧は対応不可)
・内覧可能日は一覧を確認下さい(工事進捗により変更となる可能性あり)
・弊社、土日祝定休のため事前予約は平日に対応下さい
※土日の内覧は対応できない日が出てくる可能性があります