[ 建物外観 ]
外観
[ エントランス ]
エントランス
拡大


LaDouceur黒川Ⅱ
[住居用] マンション
住所  愛知県名古屋市北区黒川本通3丁目38-1
沿線  名城線「黒川」徒歩5分  
 名城線「志賀本通」徒歩14分  
 名城線「名城公園」徒歩18分  
部屋 間取
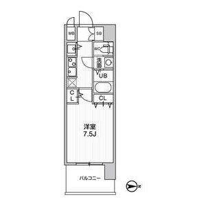
905 (9階部分) 1K (25.95m2)
賃料 管理費・共益費
59,000円 10,000円
敷金/礼金 保証金/償却・敷引
なし/なし なし/なし
契約期間
普通借家 2年間
 構造 鉄筋コンクリート造 77戸 地上12階  状態 退去予定
 築年月 2020年07月  入居可能時期 2026年3月下旬
 方位 東向き  情報更新日 2026-02-24 03:19:35
 その他
 駐車場
諸経費
保険
カギ鍵交換代 24,200 円
消毒代 22,000 円 [入居時]
Goodプレミアムα(24Hサポートのみ) 16,500 円 [入居時]
住宅総合保険(フレックス) 18,000 円 [入居時]
設備・条件
キッチン ○ 給湯器 ○ ガスコンロ(2口) ○ システムキッチン
水廻り ○ 洗面台(独立) ○ 浴室乾燥機 ○ シャワートイレ ○ 洗髪洗面化粧台 ○ バス・トイレ別 ○ 洗濯機置場(室内)
冷暖房 ○ エアコン
収納 ○ シューズボックス
放送・通信 ○ BS ○ CS ○ 光ファイバー ○ UHFアンテナ(地デジ用) ○ ネット使用料不要
セキュリティ ○ オートロック ○ 宅配BOX ○ 防犯カメラ ○ インターホン
その他 ○ 専用ごみ置場 ○ エレベーター(1基) ○ ガス(都市ガス) ○ バルコニー/ベランダ ○ 24時間換気システム ○ フローリング
物件ポイント
株式会社 さと賃
愛知県名古屋市中区栄4丁目15-14 栄ハイホーム520号室
Tel:052-990-9430  / 
Fax:052-990-9431
愛知県知事免許(1)第24868号
  • 賃貸住宅管理番号:
  •  国土交通大臣 (0 )第0号
  • 所属団体:
  •  (公社)愛知県宅地建物取引業協会
  • 不動産公正取引協議会:
  •  東海不動産公正取引協議会加盟
取引態様:仲介
お気に入り追加 お問合せ
とじる
prev next
/
[ 建物外観 ]
外観
[ エントランス ]
エントランス
とじる