[ 建物外観 ]
[ 建物外観 ]
[ 地図 ]
拡大


パークアクシス白壁
[住居用] マンション
住所  愛知県名古屋市東区白壁2丁目14-27
沿線  名城線「名古屋城」徒歩13分  
 瀬戸線「清水」徒歩4分  
部屋 間取
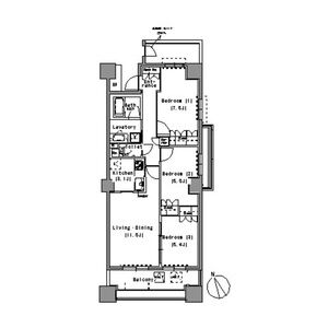
1107 (11階部分) 3LDK (73.01m2)
賃料 管理費・共益費
153,000円 12,000円
敷金/礼金 保証金/償却・敷引
1ヶ月/1ヶ月 なし/なし
契約期間
 構造 鉄骨鉄筋コンクリート造 86戸 地上15階  状態 退去予定
 築年月 2008年03月  入居可能時期 2026年4月中旬
 方位 南向き  情報更新日 2026-02-08 07:31:31
 その他
 駐車場 なし
諸経費
保険 保険要加入
室内清掃費 96,373 円
鍵交換費 16,500 円
口座振替事務手数料 110 円 [月額]
設備・条件
条件 ○ ペット相談 ○ 保証会社利用可能
キッチン ○ システムキッチン
水廻り ○ 風呂 ○ 浴室乾燥機 ○ 追い焚き ○ バス・トイレ別 ○ 洗濯機置場(室内)
冷暖房 ○ エアコン ○ 床暖房
放送・通信 ○ ケーブルTV
セキュリティ ○ オートロック ○ 宅配BOX ○ 管理人(日勤)
その他 ○ 専用ごみ置場 ○ エレベーター ○ オートバイ駐輪場 ○ 電気 ○ ガス(都市ガス) ○ 水道(公営) ○ 排水(公共下水) ○ バルコニー/ベランダ
物件ポイント
【めやす賃料】168188円/更新事務手数料:11,000円/税込(2年毎)・鍵交換代金:16,500円/税込(契約時)
バルコニ・CATV テレビ・グリル・インターネット接続可・
更新事務手数料:11,000円/税込(2年毎)・鍵交換代金:16,500円/税込(契約時)、【保証人代行】初回保証委託料(最低15,000円):月額賃料等の50%、 2年目以降:10,000円/年
周辺環境
コンビニエンスストア 「ローソン北区清水一丁目店」 (174m)
その他 「スギ薬局清水口店」 (294m)
その他 「ガスト清水口店」 (334m)
その他 「名古屋白壁郵便局」 (498m)
その他 「清水駅(名鉄 瀬戸線)」 (307m)
株式会社 さと賃
愛知県名古屋市中区栄4丁目15-14
Tel:052-990-9430  / 
Fax:052-990-9431
愛知県知事免許(1)第24868号
  • 賃貸住宅管理番号:
  •  国土交通大臣 (0 )第0号
  • 所属団体:
  •  (公社)愛知県宅地建物取引業協会
  • 不動産公正取引協議会:
  •  東海不動産公正取引協議会加盟
取引態様:仲介
お気に入り追加 お問合せ
とじる
prev next
/
[ 建物外観 ]
[ 建物外観 ]
[ 地図 ]
とじる