

|
YKマンション [住居用] マンション |
|||||
|
|||||
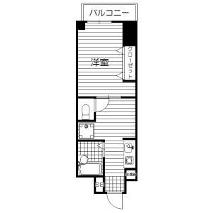
| 部屋 | 間取 | ||||
| 701(7階部分) | 1DK (28m2) | ||||
| 賃料 | 管理費・共益費 | ||||
| 60,000円 | 7,000円 | ||||
| 敷金/礼金 | 保証金/償却・敷引 | ||||
| なし/1ヶ月 | -----/----- | ||||
| 契約期間 | |||||
| 普通借家 2年間 | |||||
| ● 構造 | 鉄筋コンクリート造 40戸 地上8階 | ● 状態 | 空室 商談中 |
| ● 築年月 | 1999年11月 | ● 入居可能時期 | 即入 |
| ● 方位 | 東向き | ● 情報更新日 | 2025-11-18 16:24:39 |
| ● その他 | |||
| ● 駐車場 | |||
| 諸経費 | ||
| 保証会社 |
保証会社利用必須 日本賃貸住宅保証機構(JRAG) 保証人有・無:50% 年間保証料:15,000/1年 最低保証料:25,000円 |
|
| 保険 | 保険要加入 住宅保障共済会 2年契約 20,000円 | |
| 条件 | ○ 保証会社利用必須 |
| キッチン | ○ IHクッキングヒーター(1口) |
| 水廻り | ○ 風呂 ○ トイレ(水洗) ○ 洗面台(浴室内) ○ バス・トイレ別 ○ 洗濯機置場(室内) |
| 冷暖房 | ○ エアコン(冷暖房) |
| 収納 | ○ シューズボックス |
| 放送・通信 | ○ ケーブルTV |
| セキュリティ | ○ オートロック |
| その他 | ○ エレベーター ○ 自転車置場 ○ 電気 ○ 水道 ○ 排水(公共下水) ○ バルコニー/ベランダ ○ オール電化 |
| 周辺環境 | |
| 郵便局 「城東蒲生郵便局」 (52m) | |
| 役所 「城東区役所」 (83m) | |
| コンビニエンスストア 「ローソン」 (160m) | |
| スーパーマーケット 「関西スーパー」 (260m) | |
| 病院 「東大阪病院」 (300m) | |
| 警察署・交番 「城東警察署」 (350m) | |
| 株式会社デイグラン |
| 大阪府大阪市西区立売堀2丁目4-5 DGビルなにわ筋 |
|
Tel:06-4390-0071 / Fax:06-4390-0076 |
| 大阪府知事免許(6)第41895号 |
|
| 取引態様:専任媒介 |
|
|
[個人]契約者身分証明書
[法人]謄本・印鑑証明・会社概要
[共通]連帯保証人⇒印鑑証明 入居者⇒顔写真(全員分)
[電力会社]:関西電力 [水道]:水道局直接
[短期解約違約金]:1年未満→総賃料の2ヶ月/1年以上2年未満→総賃料1ヶ月
[解約予告]:1ヶ月前 [指定業者]:あり(引越業者)
[インフラ状況]:CATV:J:COM NTT:フレッツ光 KDDI:auひかり
■インターネット使用料無料です!
■オートロックとディンプルキーで防犯バッチリです!
■JR・京阪・地下鉄2線とアクセス抜群です!
■コンビニ・スーパーが近くに数件ございます!
■区役所、警察署、消防署、病院、郵便局も近く安心です!
■近くに大きな公園もあります!
インターネット備考:10/1より無料マンション一括インターネット設備導入
サービス導入名:フレッツ光ネクストマンションタイプ隼
各戸WIFI機器付き