[ 建物外観 ]
[ ロビー ]
[ その他共有部分 ]
[ 駐車場 ]
拡大


アドバンス大阪ブリアント
[住居用] マンション
住所  大阪府大阪市東成区東今里2丁目5-23
沿線  中央線「深江橋」徒歩9分  
 今里筋線「緑橋」徒歩9分  
 千日前線「新深江」徒歩17分  
部屋 間取
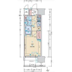
0506 (5階部分) 1K (22.94m2)
賃料 管理費・共益費
60,500円 4,000円
敷金/礼金 保証金/償却・敷引
なし/121,000円 なし/なし
契約期間
2年間
 構造 鉄筋コンクリート造 98戸 地上15階  状態 退去予定
 築年月 2020年11月  入居可能時期 2026年5月28日
 方位 南向き  情報更新日 2026-04-17 07:46:13
 その他
 駐車場 空きなし
諸経費
保証会社 保証会社利用必須
株式会社ルームバンクインシュア ※大手法人相談可
保険 保険要加入 2年契約 22,000円
更新手数料 16,500 円 [更新時]
スマサポコンシェル 1,320 円 [月額]
カギ費用 27,500 円 [契約時]
ハウスクリーニング費用 33,000 円 [契約時]
スマサポコンシェル入会金 5,500 円 [契約時]
設備・条件
条件 ○ 外国人契約可能 ○ 保証会社利用必須
キッチン ○ 給湯器 ○ システムキッチン
水廻り ○ トイレ ○ 洗面台(独立) ○ 浴室乾燥機 ○ 洗髪洗面化粧台 ○ バス・トイレ別 ○ 洗濯機置場(室内)
冷暖房 ○ エアコン
収納 ○ シューズボックス
放送・通信 ○ BS ○ CS ○ ケーブルTV
セキュリティ ○ オートロック ○ 宅配BOX ○ 防犯カメラ ○ インターホン(カメラ付き)
その他 ○ エレベーター ○ オートバイ駐輪場 ○ 自転車置場 ○ 電気 ○ ガス(都市ガス) ○ バルコニー/ベランダ
物件ポイント
屋根構造: 陸屋根、2026/04/30解約予定
下水道・モニタ付オートロック・収納スペース・ディンプルキー・ダブルロックドア・人感センサー付照明・シャワー・クローゼット
株式会社オークラハンズ
大阪府大阪市東成区東小橋1丁目1-21
Tel:06-6974-1700  / 
Fax:06-6974-1761
大阪府知事免許(6)第45015号
  • 賃貸住宅管理番号:
  •  国土交通大臣 (1 )第3290号
  • 所属団体:
  •  (公社)全日本不動産協会
  • 不動産公正取引協議会:
  •  (公社)近畿地区不動産公正取引協議会加盟
取引態様:仲介
お気に入り追加 お問合せ
とじる
prev next
/
[ 建物外観 ]
[ ロビー ]
[ その他共有部分 ]
[ 駐車場 ]
とじる