[ 建物外観 ]
[ 駐車場 ]
[ 洋室 ]
[ 洋室 ]
[ 居室・リビング ]
[ 居室・リビング ]
[ キッチン ]
[ 収納 ]
[ バス ]
[ トイレ ]
[ 洗面所 ]
[ その他設備 ]
拡大


男山長沢店舗
[事業用] 店舗(一戸建)
住所  京都府八幡市男山長沢5-1
沿線  京阪本線「樟葉」  
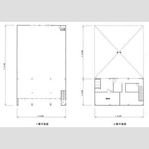
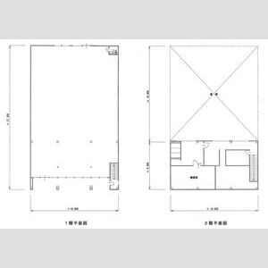
部屋 間取
1 テナント (453.35m2)
賃料 管理費・共益費
660,000円
敷金/礼金 保証金/償却・敷引
600,000円/660,000円 なし/なし
契約期間
普通借家
 構造 鉄骨造 地上2階  状態 空室
 築年月 1983年07月  入居可能時期 相談
 方位 東向き  情報更新日 2026-02-10 19:25:08
 その他
 駐車場 敷地内駐車場
空有
諸経費
保証会社 保証会社利用必須 JRAG
書類ダウンロードの「★お申し込み時必ずご確認ください★」を確認の上お申し込みください※事務手数料なし
保険 保険要加入(テナント保険別途見積)
設備・条件
条件 ○ 保証会社利用必須
水廻り ○ トイレ
冷暖房 ○ エアコン
放送・通信 ○ インターネット対応
その他 ○ 水道(公営) ○ 排水(公共下水)
物件ポイント
◆トイレ・エアコン・照明機器・自動ドアは残置
★ロードサイドの店舗物件!
★飲食店・物販・福祉系可能相談可能!
★平面駐車場付き(複数台あり)

※初期費用:敷金+礼金+日割賃料等+翌月賃料等+火災保険+保証会社初回費用
※短期解約違約金特約付帯
 1年未満の解約は総賃料の1ヶ月分
※当社指定保証会社加入必須
 大手法人保証会社なし可:敷金として賃料共益費合計1ヶ月加算要
※連帯保証人1名要(契約者の身内の方)
※解約予告:6ヶ月
必要書類:
(個人)
契約者・・現住所がわかる公的書類・住民票・源泉徴収票
連帯保証人・・印鑑証明書・源泉徴収票
(法人)
会社登記簿謄本・決算書・会社概要
連帯保証人・・・印鑑証明書・源泉徴収票
車検証コピー(駐車場契約時)
※追加書類が必要な場合あり

◆屋上広告塔(看板)行政の使用高さ制限オーバーのため現状のままでは使用できません
◆用途地域:第一種中高層住居専用地域
近藤プロパティ株式会社
大阪府大阪市中央区道修町2丁目6番7号 淀屋橋近藤ビル7階
Tel:06-6202-5188  / 
Fax:06-6202-5182
大阪府知事免許(5)第51317号
  • 賃貸住宅管理番号:
  •  国土交通大臣 (2 )第63号
お気に入り追加 お問合せ
とじる
prev next
/
[ 建物外観 ]
[ 駐車場 ]
[ 洋室 ]
[ 洋室 ]
[ 居室・リビング ]
[ 居室・リビング ]
[ キッチン ]
[ 収納 ]
[ バス ]
[ トイレ ]
[ 洗面所 ]
[ その他設備 ]
とじる