[ 建物外観 ]
[ 建物外観 ]
[ 地図 ]
[ 建物外観 ]
[ その他 ]
[ その他 ]
拡大


ハイツサンライズ
[事業用] 店舗・事務所
住所  愛知県名古屋市中区栄1丁目丁目
沿線  東山線「伏見」徒歩8分  
 鶴舞線「伏見」徒歩8分  
 徒歩8分  
 東山線「伏見」徒歩8分  
 鶴舞線「伏見」徒歩8分  
 徒歩8分  
部屋 間取
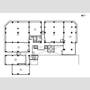
2B (2階部分) テナント (84.42m2)
賃料 管理費・共益費
336,996円
敷金/礼金 保証金/償却・敷引
3ヶ月/なし なし/なし
契約期間
2年間
 構造 鉄骨鉄筋コンクリート造 12戸 地上14階  状態 空室
 築年月 1974年10月  入居可能時期 相談
 方位 -----  情報更新日 2026-02-07 04:19:14
 その他
 駐車場 なし
諸経費
保証会社 保証会社利用可能 USEN TRUST
初回契約時:65%、更新時:10%、月額:0、過去1年間の賃料滞納回数が1回以下なら年間保証委託料(10%)が無料
保険 保険要加入 住宅保険 2年契約 21,120円
設備・条件
条件 ○ フリーレント ○ 保証会社利用可能
その他 ○ エレベーター ○ 自転車置場
物件ポイント
その他交通: 名古屋市営地下鉄鶴舞線大須観音駅 徒歩8分
フリーレント:3ヶ月
周辺環境
コンビニエンスストア 「コンビニ」 (80m)
スーパーマーケット 「スーパー」 (273m)
病院 「総合病院」 (1170m)
ドラッグストア 「ドラッグストア」 (273m)
株式会社KANOA ESTATE
愛知県名古屋市東区矢田1丁目12-15 セジュール90 202号室
Tel:052-737-6939  / 
Fax:052-308-8873
愛知県知事免許(1)第25326号
  • 所属団体:
  •  (公社)全日本不動産協会
  • 不動産公正取引協議会:
  •  不動産公正取引協議会加盟
取引態様:仲介
お気に入り追加 お問合せ
とじる
prev next
/
[ 建物外観 ]
[ 建物外観 ]
[ 地図 ]
[ 建物外観 ]
[ その他 ]
[ その他 ]
とじる