

|
プレサンス名古屋駅前アクシス [住居用] マンション |
|||||
|
|||||
| 部屋 | 間取 | ||||
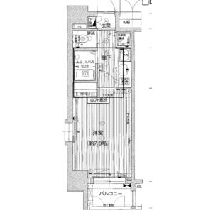
| 401(4階部分) | ワンルーム (24m2) | ||||
| 賃料 | 管理費・共益費 | ||||
| 54,000円 | 10,000円 | ||||
| 敷金/礼金 | 保証金/償却・敷引 | ||||
| なし/なし | なし/なし | ||||
| 契約期間 | |||||
| 2年間 | |||||
| ● 構造 | 鉄筋コンクリート造 地上13階 | ● 状態 | 退去予定 |
| ● 築年月 | 2006年12月 | ● 入居可能時期 | 2026年2月中旬 |
| ● 方位 | 西向き | ● 情報更新日 | 2026-01-09 16:28:04 |
| ● その他 | |||
| ● 駐車場 | |||
| 諸経費 | ||
| 保証会社 |
保証会社利用必須 クレディセゾン、エルズサポート、他 初回保証料30%~ 年10,000円 【外国籍の方】 ●クレディセゾン:初回保証料30%、更新料10,000円/年 ※永住権なしの場合、オプション加入2,200円/月(翻訳サポート・駆けつけサービス等)、更新料10,000円/年 ●GTN:初回保証料100%、更新料10,000円/年 |
|
| 保険 | 保険要加入 家財保険 2年契約 17,000円 | |
| 契約事務手数料 | 11,000円 [契約時] | |
| 更新事務手数料 | 11,000円 [契約時] | |
| カギ交換費用 | 44,000円 [契約時] (任意) | |
| エアコンクリーニング | 16,500円 [退去時] | |
| 24時間駆けつけサービス | 990円 [月額] | |
| 退去時清掃費 | 38,500円 [退去時] | |
| 条件 | ○ 外国人契約可能 ○ 2人入居可能 ○ 保証会社利用必須 |
| キッチン | ○ 給湯器 ○ ガスコンロ ○ システムキッチン |
| 水廻り | ○ 風呂(ユニットバス) ○ トイレ ○ 洗面台 ○ 浴室乾燥機 ○ 暖房便座 ○ シャワートイレ ○ 洗髪洗面化粧台 ○ バス・トイレ別 ○ 洗濯機置場(室内) |
| 冷暖房 | ○ エアコン(冷暖房) |
| 収納 | ○ シューズボックス |
| セキュリティ | ○ オートロック ○ 宅配BOX ○ 防犯カメラ ○ インターホン(カメラ付き) |
| その他 | ○ エレベーター ○ 電気 ○ ガス ○ 水道 ○ 排水 ○ バルコニー/ベランダ ○ 分譲タイプ |
| 株式会社KANOA ESTATE |
| 愛知県名古屋市東区矢田1丁目12-15 セジュール90 202号室 |
|
Tel:052-737-6939 / Fax:052-308-8873 |
| 愛知県知事免許(1)第25326号 |
|
| 取引態様:仲介 |
|
|