|
レジュールアッシュ大阪城ノルド [住居用] マンション |
|||||
|
|||||
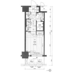
| 部屋 | 間取 | ||||
| 708 (7階部分) | 1K (24.49m2) | ||||
| 賃料 | 管理費・共益費 | ||||
| 63,000円 | 10,000円 | ||||
| 敷金/礼金 | 保証金/償却・敷引 | ||||
| なし/なし | なし/なし | ||||
| 契約期間 | |||||
| 普通借家 2年間 | |||||
| ● 構造 | 鉄筋コンクリート造 地上10階 地下7階 | ● 状態 | 退去予定 |
| ● 築年月 | 2013年08月 | ● 入居可能時期 | 2026年6月中旬 |
| ● 方位 | 西向き | ● 情報更新日 | 2026-04-04 18:05:51 |
| ● その他 | |||
| ● 駐車場 | |||
| 諸経費 | ||
| 保証会社 |
保証会社利用必須 セゾン、エルズ他 ・初回保証料30%~ |
|
| 保険 | 家財保険 2年契約 17,000円 | |
| 更新事務手数料 | 11,000 円 [更新時] | |
| 退去時清掃代 | 38,500 円 [退去時] | |
| 契約事務手数料 | 11,000 円 [契約時] | |
| カギ交換費用 | 44,000 円 [契約時] 任意 | |
| 24時間駆け付けサービス | 990 円 [月額] | |
| エアコンクリーニング | 16,500 円 [退去時] | |
| 条件 | ○ ペット相談 ○ 外国人契約可能 ○ 保証人不要 ○ 保証会社利用必須 |
| キッチン | ○ 給湯器(ガス) ○ ガスコンロ(2口) |
| 水廻り | ○ 風呂(ユニットバス) ○ トイレ(水洗) ○ 洗面台(独立) ○ 浴室乾燥機 ○ 暖房便座 ○ シャワートイレ ○ バス・トイレ別 ○ 洗濯機置場(室内) |
| 冷暖房 | ○ エアコン(冷暖房) |
| セキュリティ | ○ オートロック ○ 宅配BOX ○ 管理人(巡回) ○ インターホン(カメラ付き) |
| その他 | ○ 専用ごみ置場 ○ エレベーター ○ 自転車置場 ○ 電気 ○ ガス(都市ガス) ○ 水道(公営) ○ 排水(公共下水) ○ バルコニー/ベランダ ○ 網戸 |
| 株式会社オネスティー |
| 大阪府高槻市高槻町16-4RISEII2F |
|
Tel:072-648-4232 / Fax:072-648-4233 |
| 大阪府知事免許(1)第66042号 |
|
| 取引態様:仲介 |
|
|