[ 建物外観 ]
[ 居室・リビング ]
[ 居室・リビング ]
[ 居室・リビング ]
[ バス ]
[ 洗面所 ]
[ トイレ ]
[ その他設備 ]
[ キッチン ]
[ その他設備 ]
[ その他設備 ]
拡大


パークシティ水野A棟
[住居用] マンション
住所  愛知県瀬戸市北山町93
沿線  瀬戸線「水野」徒歩5分  
 瀬戸線「新瀬戸」徒歩11分  
 愛知環状線「瀬戸市」徒歩12分  
部屋 間取
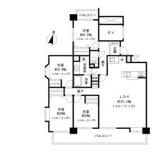
901(9階部分) 4LDK (103.38m2)
賃料 管理費・共益費
98,000円 0円
敷金/礼金 保証金/償却・敷引
1ヶ月/1ヶ月 なし/なし
契約期間
定期借家 2027年02月28日まで
 構造 鉄骨鉄筋コンクリート造 72戸 地上11階  状態 退去予定
 築年月 1988年02月  入居可能時期 2026年2月下旬
 方位 南向き  情報更新日 2026-01-24 07:44:23
 その他
 駐車場 無料駐車場付
礼金なし、敷金なし、屋外、平置、地上、屋根無
諸経費
保証会社 保証会社利用必須 オリコフォレントインシュア
契約時:月額総支払額60% 月額:月額総支払額1%更新時:無
保険 保険要加入
退室料 136,461円
鍵交換費 24,200円
設備・条件
条件 ○ 保証人不要 ○ 子供可 ○ 保証会社利用必須
キッチン ○ ガスコンロ(3口以上) ○ システムキッチン
水廻り ○ 風呂(ユニットバス) ○ トイレ ○ 浴室乾燥機 ○ シャワートイレ ○ 追い焚き ○ 洗髪洗面化粧台 ○ バス・トイレ別 ○ 洗濯機置場(室内)
収納 ○ シューズボックス
放送・通信 ○ 光ファイバー ○ ネット専用回線
セキュリティ ○ オートロック ○ 防犯カメラ ○ インターホン(カメラ付き)
その他 ○ 専用ごみ置場 ○ エレベーター ○ 自転車置場 ○ 電気 ○ ガス(都市ガス) ○ 水道(公営) ○ 排水(公共下水) ○ バルコニー/ベランダ ○ 分譲タイプ ○ フローリング
物件ポイント
確認コード:0100316401◎定期借家(2027年2月28迄、再契約不可)◎民泊不可◎駐車場1台込み(No.116)◎法人契約:敷金1ヶ月・礼金+1ヶ月◎バイク駐輪不可◎石油系暖房器具使用◎入居者アプリ加入必須となります
モニタ付オートロック・バルコニ・全室フローリング・給湯・シャワー・暖房便座・グリル・南面3室・収納・クロゼット・収納3ヵ所・クロゼット3ヵ所・インターネット接続可・当社管理物件・火災警報器等設置済み・コンロ設置済み
◎更新事務手数料:個人0.22ヶ月・法人0.55ヶ月(2年毎)、【保証人代行】オリコフォレント契約時:月額総支払額60% 月額:月額総支払額1%更新時:無
オトクル|賃貸仲介専門店
愛知県名古屋市昭和区川原通6丁目2-1 マックスバリュ川原店1F
Tel:050-1720-7581 / 
Fax:
愛知県知事免許(2)第23764号
  • 所属団体:
  •  (公社)愛知県宅地建物取引業協会
  • 不動産公正取引協議会:
  •  東海不動産公正取引協議会加盟
取引態様:仲介
お気に入り追加 お問合せ
とじる
prev next
/
[ 建物外観 ]
[ 居室・リビング ]
[ 居室・リビング ]
[ 居室・リビング ]
[ バス ]
[ 洗面所 ]
[ トイレ ]
[ その他設備 ]
[ キッチン ]
[ その他設備 ]
[ その他設備 ]
とじる