[ 建物外観 ]
[ 建物外観 ]
[ その他 ]
[ その他 ]
[ 玄関 ]
家具・家電付き
[ キッチン ]
電気コンロ 2口
[ バス ]
[ その他 ]
[ その他 ]
モニター付きインターホン
[ その他 ]
[ 居室・リビング ]
[ 寝室 ]
拡大


レオパレスTANGARYO
[住居用] アパート
住所  愛知県丹羽郡大口町余野3丁目丁目
沿線  犬山線「柏森」徒歩15分  
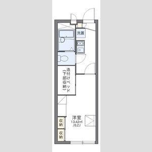
部屋 間取
201 (2階部分) 1K (22.35m2)
賃料 管理費・共益費
61,000円 7,000円
敷金/礼金 保証金/償却・敷引
なし/1ヶ月 なし/なし
契約期間
 構造 軽量鉄骨造 18戸 地上2階  状態 空室
 築年月 2006年04月  入居可能時期 即入
 方位 -----  情報更新日 2026-03-28 08:02:07
 その他
 駐車場 敷地内駐車場/空き1台/6,050円
諸経費
保険 保険要加入 住宅保険
鍵交換費用 16,500 円
室内清掃費用 41,800 円
設備・条件
位置 ○ 角部屋
キッチン ○ 給湯器 ○ 電気コンロ
水廻り ○ 浴室乾燥機 ○ シャワートイレ ○ バス・トイレ別 ○ 洗濯機置場(室内)
冷暖房 ○ エアコン(冷暖房)
放送・通信 ○ インターネット対応
セキュリティ ○ 宅配BOX ○ 防犯カメラ ○ インターホン(カメラ付き)
その他 ○ 自転車置場 ○ 家具付 ○ 家電付
物件ポイント
環境維持費:1ヶ月550円(税込)、鍵交換費:ご契約時16500円(税込)、退去時清掃費:41800円(税込)、インターネット利用料:有料、更新手数料:16500円(税込)、保証委託料:必要、引落手数料:524円(税込)
インターネット使い放題・U-NEXT一般作品見放題プラン有
オトクル|賃貸仲介専門店
愛知県名古屋市昭和区川原通6丁目2-1 マックスバリュ川原店1F
Tel:050-1720-7581  / 
Fax:
愛知県知事免許(2)第23764号
  • 所属団体:
  •  (公社)愛知県宅地建物取引業協会
  • 不動産公正取引協議会:
  •  東海不動産公正取引協議会加盟
取引態様:仲介
お気に入り追加 お問合せ
とじる
prev next
/
[ 建物外観 ]
[ 建物外観 ]
[ その他 ]
[ その他 ]
[ 玄関 ]
家具・家電付き
[ キッチン ]
電気コンロ 2口
[ バス ]
[ その他 ]
[ その他 ]
モニター付きインターホン
[ その他 ]
[ 居室・リビング ]
[ 寝室 ]
とじる