|
第21松井ビル [事業用] 店舗・事務所 |
|||||
|
|||||
| 部屋 | 間取 | ||||
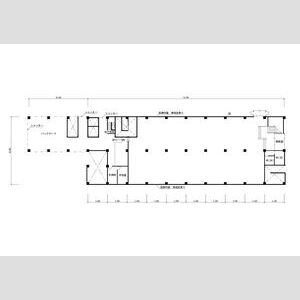
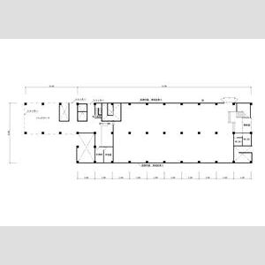
| 1F (1階部分) | テナント (1049m2) | ||||
| 賃料 | 管理費・共益費 | ||||
| 1,274,039円 | |||||
| 敷金/礼金 | 保証金/償却・敷引 | ||||
| 4,632,872円/なし | なし/なし | ||||
| 契約期間 | |||||
| 普通借家 3年間 | |||||
| ● 構造 | 鉄筋コンクリート造 41戸 地上5階 地下1階 | ● 状態 | 退去予定 |
| ● 築年月 | 1979年10月 | ● 入居可能時期 | 相談 |
| ● 方位 | ----- | ● 情報更新日 | 2026-04-01 19:52:07 |
| ● その他 | |||
| ● 駐車場 |
なし |
||
| 諸経費 | ||
| 保証会社 |
保証会社利用必須 ジェイリース J-AKINAI(初回保証料・月額保証料:借主負担、初回保証料100%) |
|
| 保険 | 保険要加入 2年契約 | |
| 24時間管理手数料 | 1,100 円 [月額] | |
| 契約事務手数料 | 11,000 円 [契約時] | |
| 条件 | ○ 保証会社利用必須 |
| セキュリティ | ○ 管理人(巡回) |
| その他 | ○ エレベーター |
| 周辺環境 | |
| 小学校 「札幌市立白石小学校」 (672m) | |
| 中学校 「札幌市立柏丘中学校」 (1113m) | |
| コンビニエンスストア 「ローソン札幌平和通三丁目店」 (336m) | |
| スーパーマーケット 「ビッグハウス白石店」 (201m) | |
| 飲食店 「バーガーキング札幌白石店」 (949m) | |
| 郵便局 「白石本通北郵便局」 (679m) | |
| 株式会社ジースペース |
| 北海道札幌市中央区南六条西7丁目5番2号第82松井ビル1F |
|
Tel:011-522-8192 / Fax: |
| 北海道知事石狩免許(1)第9711号 |
|
| 取引態様:仲介 |
|
|
提携駐車場あり※要相談