[ 建物外観 ]
[ 地図 ]
拡大


パークアクシス名古屋山王
[住居用] マンション
住所  愛知県名古屋市中区正木1丁目2-28
沿線  名鉄本線「山王」徒歩9分  
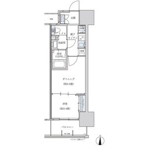
部屋 間取
602 (6階部分) 1DK (29.12m2)
賃料 管理費・共益費
71,000円 8,000円
敷金/礼金 保証金/償却・敷引
1ヶ月/なし なし/なし
契約期間
 構造 鉄筋コンクリート造 地上15階  状態 退去予定
 築年月 2018年11月  入居可能時期 2026年5月下旬
 方位 南向き  情報更新日 2026-04-21 15:00:35
 その他
 駐車場 なし
諸経費
保険 保険要加入
室内清掃費 41,800 円
口座振替事務手数料 220 円 [月額]
設備・条件
条件 ○ 保証会社利用可能
キッチン ○ システムキッチン
水廻り ○ 風呂 ○ 洗面台(独立) ○ 浴室乾燥機 ○ バス・トイレ別 ○ 洗濯機置場(室内)
冷暖房 ○ エアコン
放送・通信 ○ ケーブルTV
セキュリティ ○ オートロック ○ 宅配BOX ○ 管理人(巡回)
その他 ○ 専用ごみ置場 ○ エレベーター ○ オートバイ駐輪場 ○ 電気 ○ バルコニー/ベランダ ○ フローリング
物件ポイント
【めやす賃料】80480円/■電子契約不可/(保証会社利用時)敷金1ヶ月※駐車場空有。別途お問い合わせ下さい。
バルコニ・CATV テレビ・インターネット接続可・
■電子契約不可/(保証会社利用時)敷金1ヶ月※駐車場空有。別途お問い合わせ下さい。、【保証人代行】初回保証委託料(最低15,000円):月額賃料等の50%、 2年目以降:10,000円/年
株式会社名古屋第一不動産
愛知県名古屋市千種区今池4丁目8番19号
Tel:052-731-4031  / 
Fax:052-733-6011
愛知県知事免許(9)第15131号
  • 賃貸住宅管理番号:
  •  国土交通大臣 (1 )第1126号
  • 所属団体:
  •  (公社)愛知県宅地建物取引業協会
取引態様:仲介
お気に入り追加 お問合せ
とじる
prev next
/
[ 建物外観 ]
[ 地図 ]
とじる