[ 建物外観 ]
[ エントランス ]
[ 地図 ]
[ 敷地内/建物 ]
[ その他 ]
[ 自転車置場 ]
[ 駐車場 ]
[ その他 ]
[ エントランス ]
[ 居室・リビング ]
[ キッチン ]
[ その他設備 ]
[ 収納 ]
[ トイレ ]
[ バス ]
[ 洗面所 ]
[ バルコニー・ベランダ ]
[ 玄関 ]
[ 洋室 ]
拡大


ディアレイシャス泉
[住居用] マンション
住所  愛知県名古屋市東区泉3丁目4-13
沿線  桜通線「高岳」徒歩10分  
 東山線「新栄町」徒歩15分  
 東山線「栄」バス9分「名古屋市営バス 平田町」停 徒歩2分  
部屋 間取
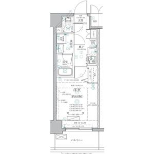
703 (7階部分) 1K (22.04m2)
賃料 管理費・共益費
60,000円 8,000円
敷金/礼金 保証金/償却・敷引
なし/なし -----/-----
契約期間
普通借家 2年間
 構造 鉄筋コンクリート造 60戸 地上11階  状態 退去予定
 築年月 2022年02月  入居可能時期 2026年3月下旬
 方位 東向き  情報更新日 2026-02-14 15:32:31
 その他 ・法人契約可
 駐車場 詳細は建物管理会社にお問い合わせください (株)レイシャス建物管理課 03-6880-1049
諸経費
保証会社 保証会社利用必須 エポスカード
エポスROOMiD(初回50%、月次1%)
GTN(初回100%、月次2%)
ルームバンク(初回50%、月次1%)
セーフティー(初回50%、年次10,000円)
保険 保険要加入 エポス少額短期保険 2年契約 18,000円
鍵交換費用(任意) 38,500 円 [契約時]
くらしーど24 1,100 円 [月額] (必須)24時間サポート
契約時クリーニング代 44,000 円 [契約時] 契約時必須
エアコン内部洗浄代 11,000 円 [退去時]
設備・条件
位置 ○ 角部屋
条件 ○ 外国人契約可能 ○ 保証人不要 ○ 単身者限定 ○ 保証会社利用必須
キッチン ○ 給湯器(都市ガス) ○ ガスコンロ(2口) ○ システムキッチン
水廻り ○ 風呂(ユニットバス) ○ トイレ(水洗) ○ 洗面台(独立) ○ 浴室乾燥機 ○ 暖房便座 ○ シャワートイレ ○ バス・トイレ別 ○ 洗濯機置場(室内)
冷暖房 ○ エアコン(冷暖房)
収納 ○ シューズボックス
放送・通信 ○ BS ○ CS ○ UHFアンテナ(地デジ用) ○ インターネット対応 ○ ネット使用料不要 ○ Wi-Fi
セキュリティ ○ オートロック ○ 宅配BOX ○ 管理人(巡回) ○ 防犯カメラ ○ インターホン(カメラ付き)
その他 ○ 専用ごみ置場 ○ エレベーター(1基) ○ 自転車置場 ○ 電気 ○ ガス(都市ガス) ○ 水道(公営) ○ 排水(公共下水) ○ バルコニー/ベランダ ○ 照明 ○ 24時間換気システム ○ 分譲タイプ ○ フローリング ○ 室内物干
物件ポイント
弊社管理物件!敷金・礼金0円キャンペーン実施中
■短期違約金:1年未満1ヶ月 ■更新料:新賃料1ヶ月分 ■入居者アプリ登録必須 ■GTN相談可 ■電気・ガス・水道に関しては弊社指定業者からの手続きが必須となります。【㈱DUAL HOLDINGS】

【法人契約の場合】
■敷金礼金:1ヶ月/1ヶ月 ■条件相談可能
■インターネットWi-Fi無料(シーファイブ)
インターネット備考:インターネット無料(シーファイブ「CIMS WiFi」)
パノラマ画像
( 建物外観 )
( 敷地内/建物 )

( 自転車置場 )
( セキュリティ )

( エントランス )
( 玄関 )

( キッチン )
( バス )

( 収納 )
( 洋室 )

周辺環境
コンビニエンスストア 「セブンイレブン」 (170m)
スーパーマーケット 「マックスバリュ」 (230m)
郵便局 「名古屋代官郵便局」 (560m)
病院 「加藤内科クリニック」 (310m)
銀行・信用金庫 「名古屋銀行」 (160m)
役所 「名古屋市東区役所」 (700m)
株式会社名古屋第一不動産
愛知県名古屋市千種区今池4丁目8番19号
Tel:052-731-4031  / 
Fax:052-733-6011
愛知県知事免許(9)第15131号
  • 賃貸住宅管理番号:
  •  国土交通大臣 (1 )第1126号
  • 所属団体:
  •  (公社)愛知県宅地建物取引業協会
取引態様:仲介
お気に入り追加 お問合せ
とじる
prev next
/
[ 建物外観 ]
[ エントランス ]
[ 地図 ]
[ 敷地内/建物 ]
[ その他 ]
[ 自転車置場 ]
[ 駐車場 ]
[ その他 ]
[ エントランス ]
[ 居室・リビング ]
[ キッチン ]
[ その他設備 ]
[ 収納 ]
[ トイレ ]
[ バス ]
[ 洗面所 ]
[ バルコニー・ベランダ ]
[ 玄関 ]
[ 洋室 ]
とじる