

|
エステムコート名古屋上前津 ★月~金 内覧可能 [住居用] マンション |
|||||
|
|||||
| 部屋 | 間取 | ||||
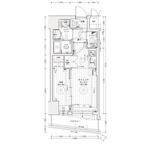
| 303(3階部分) | 1DK (28m2) | ||||
| 賃料 | 管理費・共益費 | ||||
| 77,000円 | 5,340円 | ||||
| 敷金/礼金 | 保証金/償却・敷引 | ||||
| なし/なし | なし/なし | ||||
| 契約期間 | |||||
| 普通借家 1年間 | |||||
| ● 構造 | 鉄筋コンクリート造 126戸 地上15階 | ● 状態 | 商談中 新築 建築中 |
| ● 築年月 | 2026年01月 | ● 入居可能時期 | 2026年2月07日 |
| ● 方位 | 北向き | ● 情報更新日 | 2026-01-12 07:48:07 |
| ● その他 | |||
| ● 駐車場 |
敷地内駐車場/20,000円~22,000円 |
||
| 諸経費 | ||
| 保証会社 |
保証会社利用必須 エステム保証サービス(オリコフォレント) 初回保証料 総賃料50% 月額保証料 総賃料1.5% |
|
| 保険 | 保険要加入 2年契約 20,000円 | |
| 室内清掃費用 | 43,120円 [退去時] | |
| カギ交換費用 | 33,000円 [退去時] | |
| 更新事務手数料 | 16,500円 [更新時] | |
| 契約事務手数料 | 11,000円 [契約時] | |
| エステム安心クラブ 入会金 | 5,500円 [契約時] | |
| エステム安心クラブ 月額費 | 990円 [月額] | |
| エアコンクリーニング代 | 13,200円 [退去時] | |
| 条件 | ○ ペット相談(小型犬のみ) ○ 2人入居可能 ○ 保証人不要 ○ 保証会社利用必須 |
| キッチン | ○ 給湯器(都市ガス) ○ ガスコンロ(2口) |
| 水廻り | ○ 風呂 ○ トイレ(水洗) ○ 洗面台(独立) ○ 浴室乾燥機 ○ 暖房便座 ○ シャワートイレ ○ バス・トイレ別 ○ 洗濯機置場(室内) |
| 冷暖房 | ○ エアコン(冷暖房) |
| 収納 | ○ ウォークインクローゼット ○ シューズボックス |
| 放送・通信 | ○ BS ○ CS ○ 光ファイバー ○ ケーブルTV ○ インターネット対応 ○ ネット使用料不要 ○ Wi-Fi |
| セキュリティ | ○ オートロック ○ 宅配BOX ○ 管理人(巡回) ○ 防犯カメラ ○ インターホン(カメラ付き) |
| その他 | ○ 専用ごみ置場 ○ エレベーター(1基) ○ 自転車置場 ○ ペット足洗い場 ○ 電気 ○ ガス(都市ガス) ○ 水道(公営) ○ 排水(公共下水) ○ バルコニー/ベランダ ○ 照明 ○ 網戸 ○ 24時間換気システム ○ 分譲タイプ ○ フローリング |
| 周辺環境 | |
| コンビニエンスストア 「ローソン中区下前津店」 (270m) | |
| ドラッグストア 「スギ薬局 上前津店」 (170m) | |
| 株式会社名古屋第一不動産 |
| 愛知県名古屋市千種区今池4丁目8番19号 |
|
Tel:052-731-4031 / Fax:052-733-6011 |
| 愛知県知事免許(9)第15131号 |
|
| 取引態様:仲介 |
|
|
インターネット備考:スターキャット光